Компания ППР48 выполнила ППР на монтаж промышленного оборудования
Компания ППР 48 завершила разработку проекта производства работ (ППР) на монтаж промышленного оборудования для предприятия заказчика.
Данный проект разработан с целью обеспечения качественного и своевременного монтажа сложного технологического оборудования в рамках строительства нового производственного комплекса.
Основные цели проекта
Проект направлен на решение следующих ключевых задач:
- Обеспечение высокого качества выполняемых работ;
- Сокращение сроков ввода оборудования в эксплуатацию;
- Минимизация рисков возникновения аварийных ситуаций и дефектов монтажа;
- Оптимизация расходов на выполнение монтажных работ.
Особенности разработки
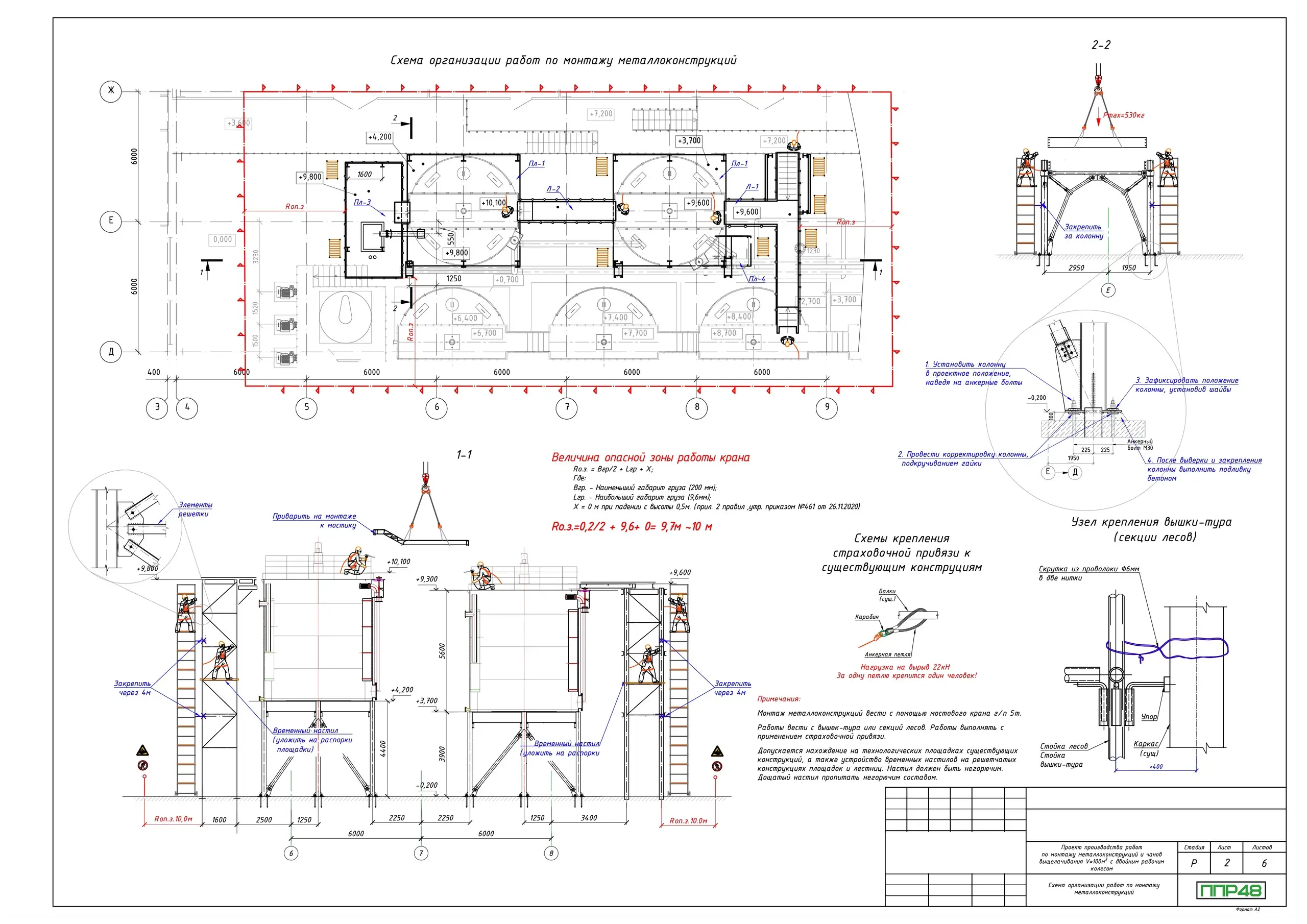
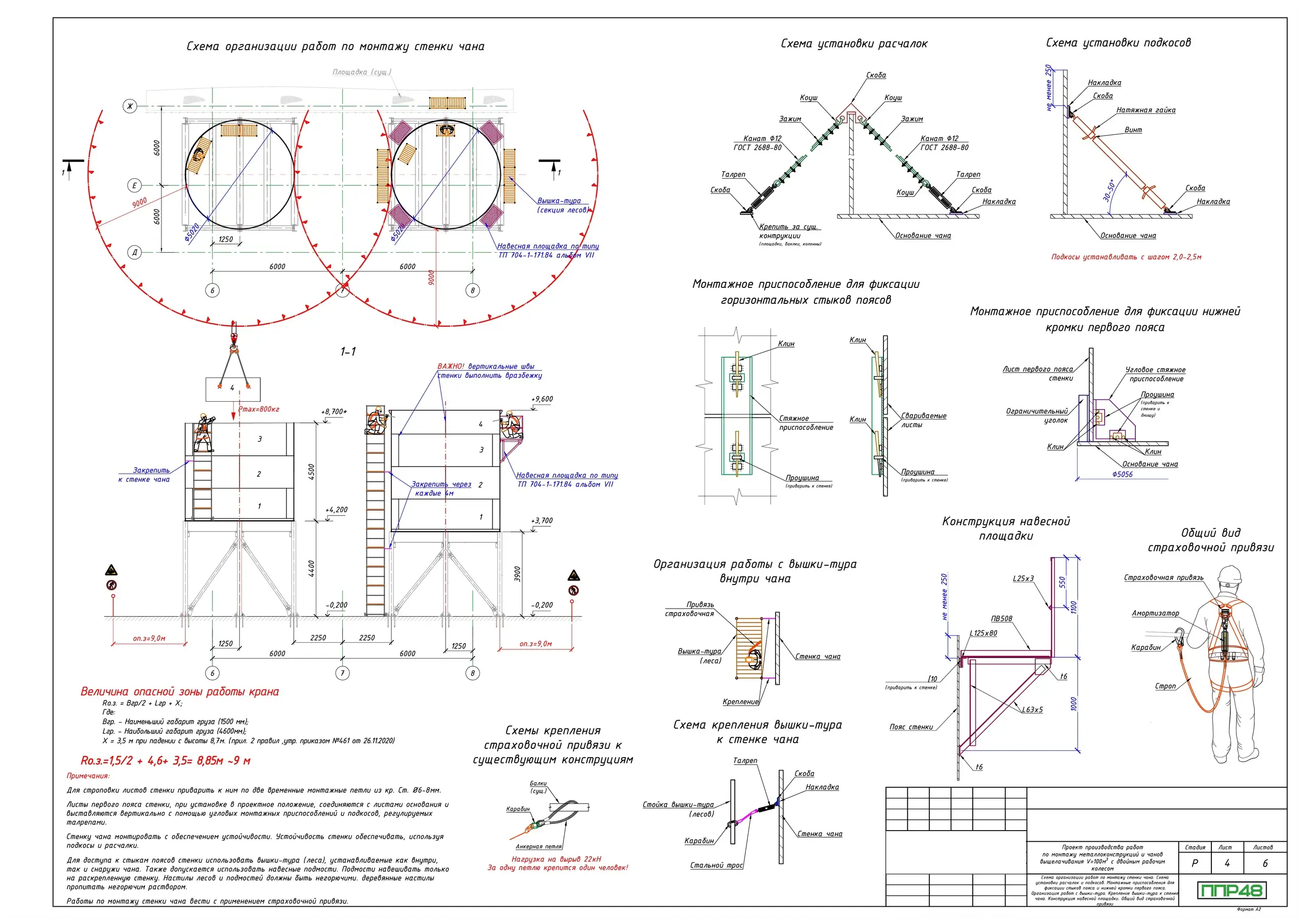
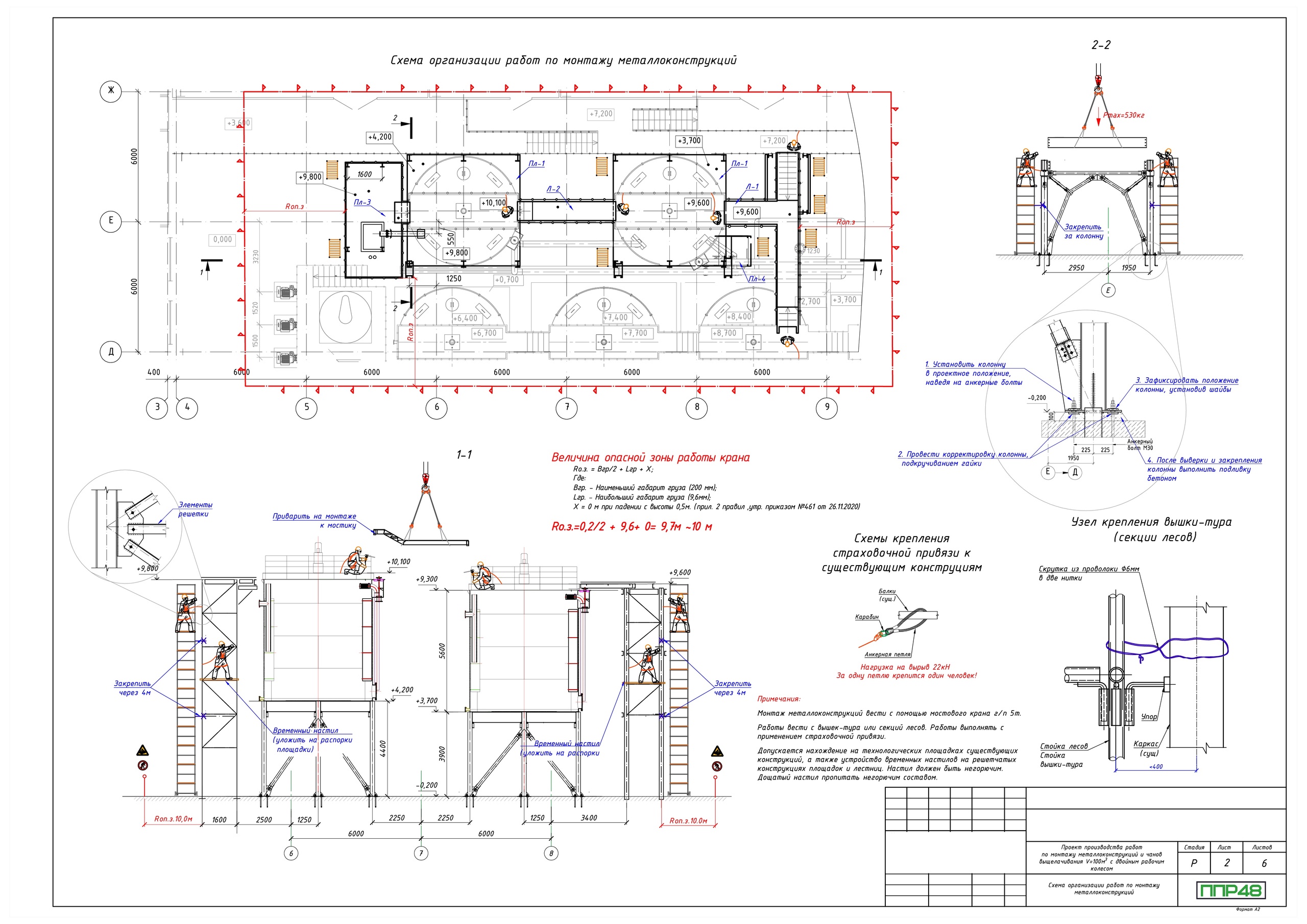
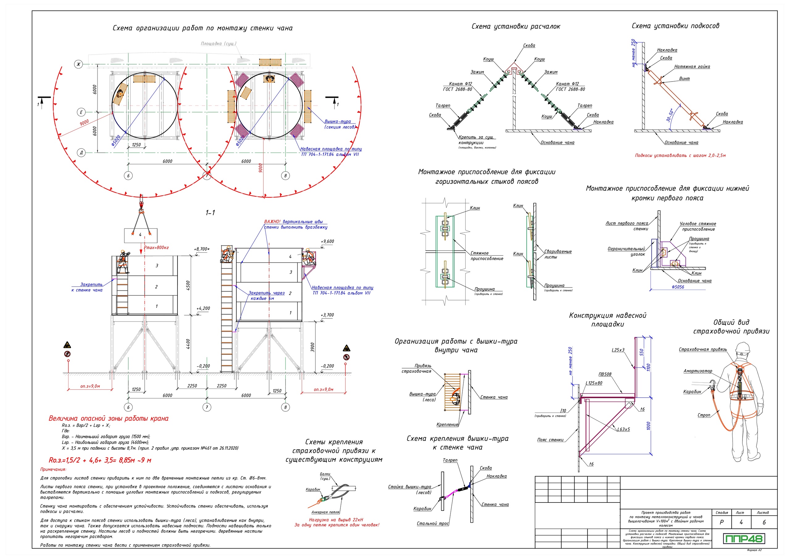
При разработке проекта были учтены специфические требования конкретного предприятия, особенности используемого оборудования и условия эксплуатации. Были проведены необходимые расчеты и подготовлены чертежи, схемы и спецификации материалов и комплектующих.
Особое внимание уделено вопросам организации труда, техники безопасности и охраны окружающей среды. Разработаны мероприятия по обеспечению безопасности персонала и минимизации воздействия на окружающую среду.
Реализация проекта
Реализация проекта включает в себя следующие этапы:
- Подготовка площадки и подготовка фундамента;
- Доставка и разгрузка оборудования;
- Монтаж основного оборудования и вспомогательных устройств;
- Проведение пусконаладочных работ и испытаний;
- Передача оборудования заказчику и оформление документации.
Для реализации проекта привлечены квалифицированные специалисты и используются современные технологии и оборудование.
Заключение
Разработка проекта производства работ является важным этапом подготовки к монтажу промышленного оборудования. Грамотно разработанный проект позволяет обеспечить качественное и эффективное выполнение всех необходимых мероприятий, сократить сроки ввода оборудования в эксплуатацию и минимизировать риски возможных проблем.






























