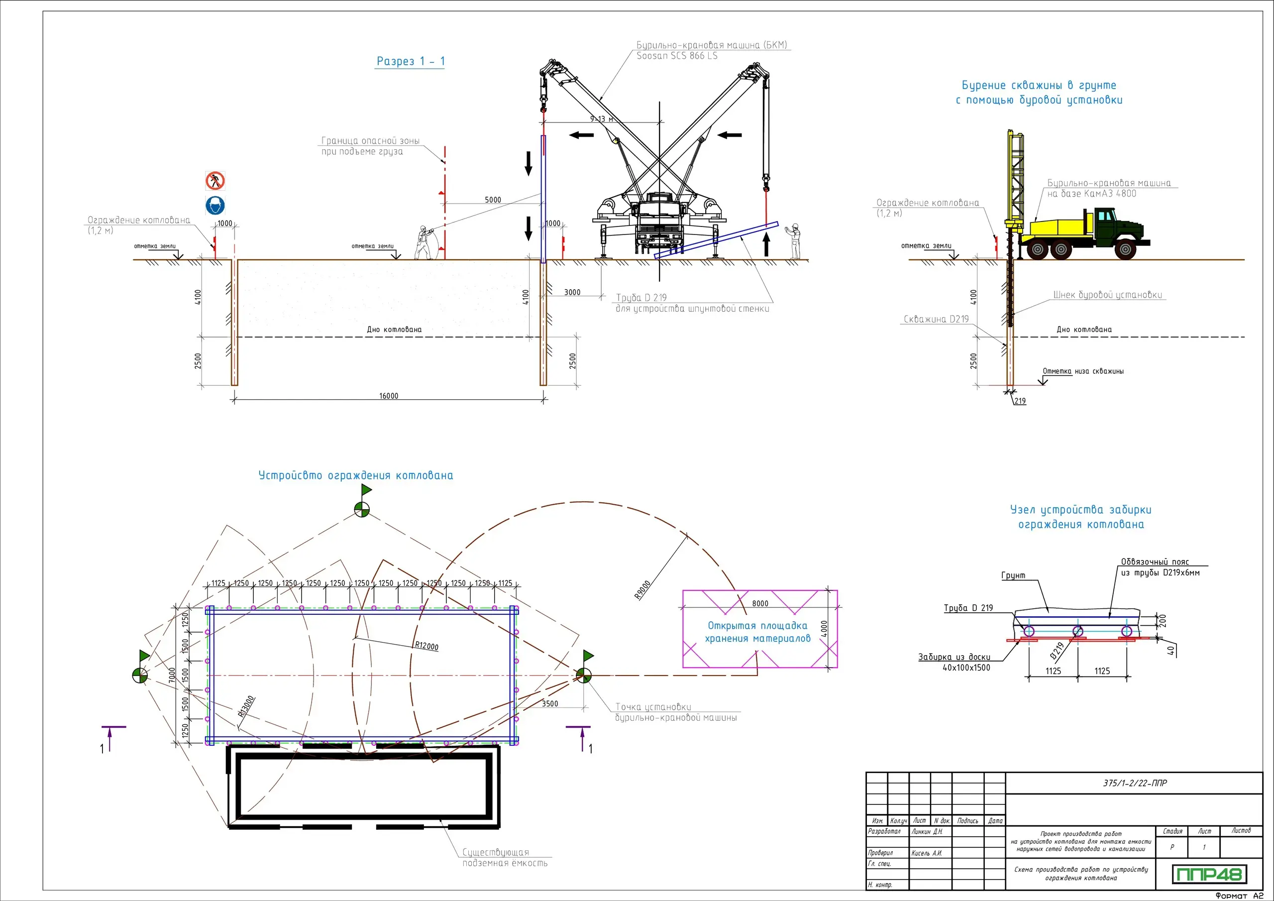
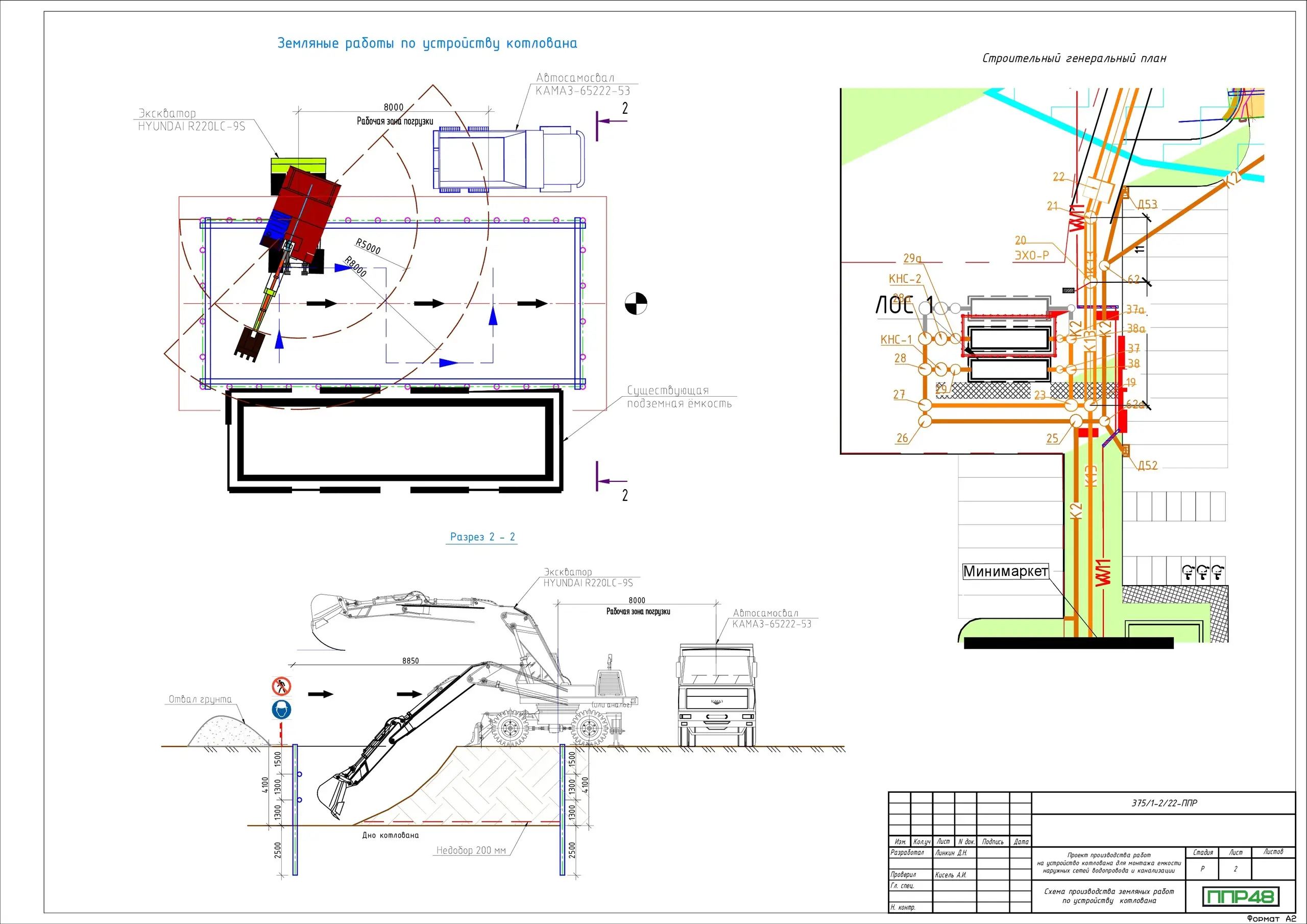
Компания ППР48 выполнила ППР на устройство ограждения котлована и разработку грунта.
Сотрудниками ППР48 был разработан небольшой ППР на устройство ограждения котлована и разработку грунта. Чем же интересен столь незначительный по объему ППР? Он интересен тем, что компания для которой необходимо было выполнить данный проект не обладала нужными исходными данными а именно у них не было проекта самого котлована. Поэтому мы предложили им выполнить расчеты и проект на котлован. Мы успешно справились с данной задачей, после чего появилась возможность разработать ППР.





























