Проект производства работ на монтаж конструкций из сборного железобетона
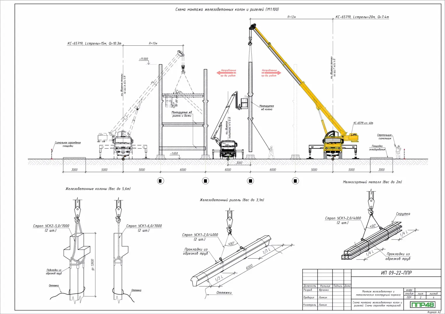
При монтаже сборных железобетонных конструкций (фундаментов, фундаментных блоков, колонн, балок, плит перекрытия, стеновых панелей, ферм и т.д) необходимо соблюдать требования СП 70.13330.2012 (просмотр). Последовательность сборки элементов каркаса из сборного ж.б. зависит от типа (назначения) здания. Существует два основных типа зданий, при сооружении которых осуществляется сборка железобетонных конструкций: жилые дома с каркасом из сборно-монолитного ж.б.; промышленные здания из сборного железобетона. Проект производства монтажных работ для сборных элементов можно условно разбить на несколько основных разделов: операции с участием грузоподъемной техники, выверка конструкций и их закрепление с помощью закладных деталей, работы по бетонированию (для элементов из сборно-монолитного ж.б.).








































