Общие сведения
ППР для резервуаров – важный организационно-технологичный документ, который регламентирует порядок и правила выполнения строительно-монтажных работ, четко определяет состав и техническое отношения подрядной организации, содержит персональные рекомендации по выполнению работ и соблюдению техники безопасности для отдельно взятых сотрудников и их рабочих специальностей.
Проект производства работ на монтаж резервуара
ППР разрабатывают с учетом требований документов (загрузить), регламентирующих правила проведения СМР, связанных с сооружением емкостей для хранения промышленного сырья. Содержание и наполнение проекта на строительство (ремонт) резервуара зависит от таких факторов как: степень заглубления; целевое назначение емкости; инженерно-геологические условия; климатический регион; основной материал, используемый при строительстве.

При разработке ППР на монтаж стального РВС, необходимо грамотно формировать состав проекта.
ППР на монтаж резервуаров разрабатывается опытными специалистами, которые обладают конструкторскими навыками, опытом в проектировании резервуаров на стадии ПД и РД. Они всегда должны учитывать указания отраслевых нормативных документов, данные из КМ и решения из других проектных разделов. Качественный анализ проекта, позволяет подойти к выполнению проектных работ осознанно, позволяет детально проработать все этапы монтажных работ, определить потребности в оснастке и оборудовании. В документе прорабатывают этапы укрупнительной сборки, определяют геометрическую точность и геодезическую съемку установки конструкций в проектное положение. Также проект должен учитывать степень усадки возводимых конструкций. Все это предупреждает возможное появление негативных деформационных процессов, вызванных ошибками в процессе неправильного выполнения работ.
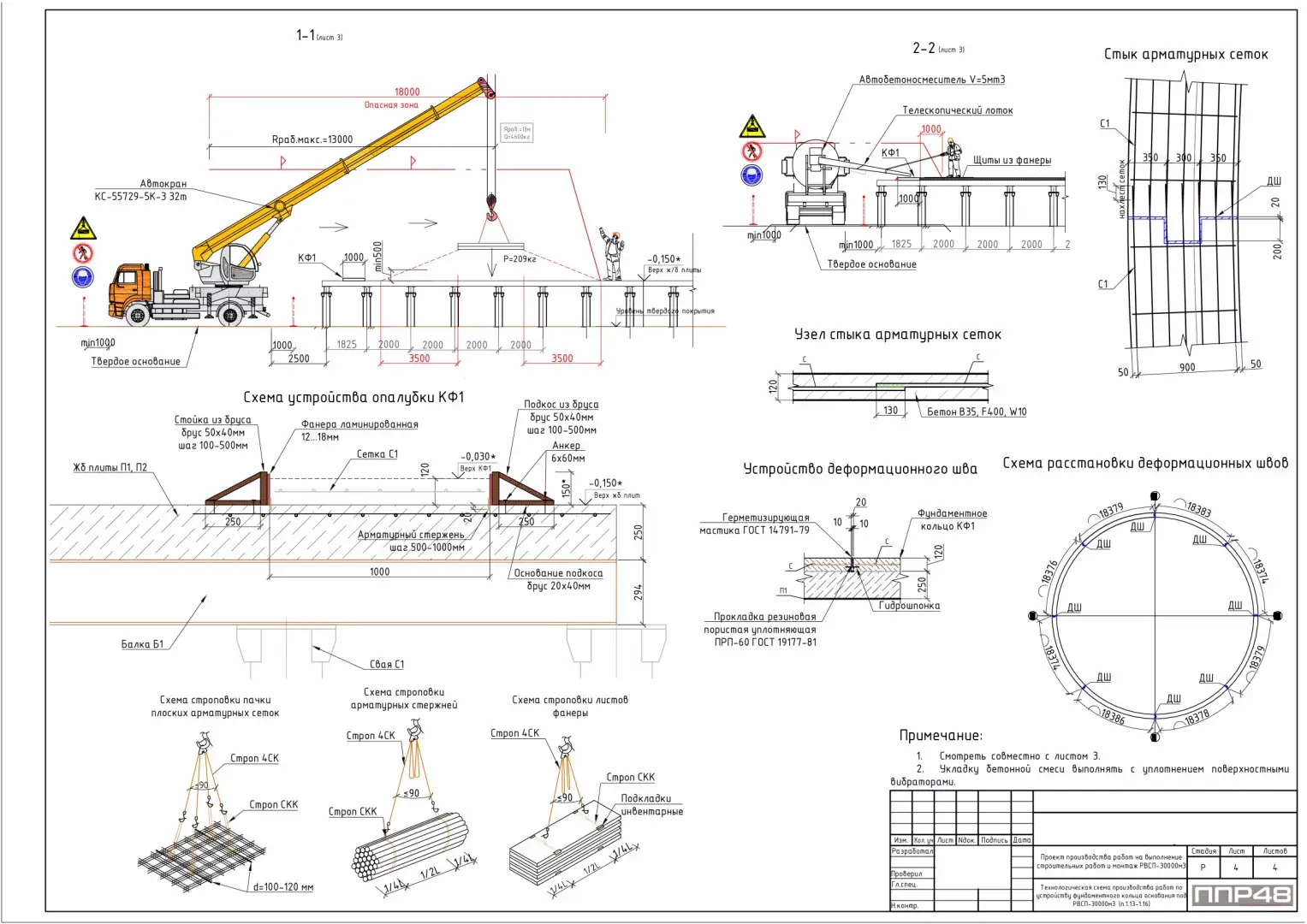
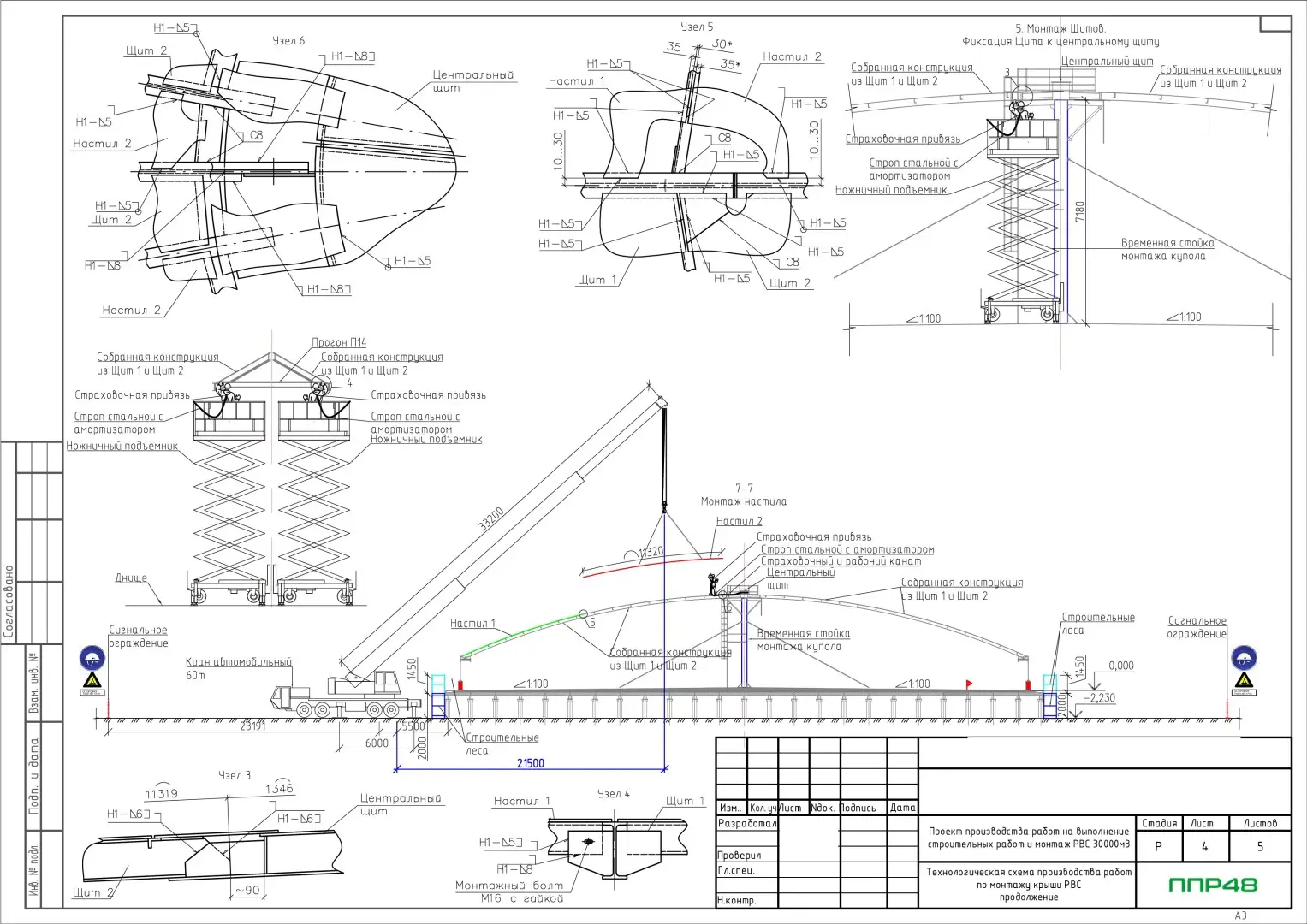
ППР для резервуара РВС помогает определиться с последовательностью его монтажа. На первом этапе необходимо подготовить основание для дальнейшего размещения на нем основной конструкции. Для этих целей устраивают фундамент радиальной формы. Технология монтажа зависит от конструктивных решений проекта КМД. Для монтажа стенок резервуара, его днища и покрытия в большинстве случаев используют грузоподъемную технику. Для некоторых типов РВС для установки их вертикальных частей (стен) в проектное положение прибегают к использованию домкратных систем. После возведения каркасов конструкций, переходят к устройству внутренней гидроизоляции, подключению инженерных систем, испытаниям и последующему нанесению АКЗ покрытий.
ППР на демонтаж резервуара
ППР на демонтаж резервуара определяет порядок и регламентирует способы разборки конструкции. До начала работ необходимо отсоединить резервуар от технологических коммуникаций, произвести его очистку. Все элементы демонтируются в четкой последовательности: лестницы, кровля, корпус, днище.
В состав проекта входят:
- характеристика объекта;
- технологические решения по демонтажу;
- порядок производства работ;
- меры, направленные на обеспечение безопасности и решения по охране труда;
- номенклатура техники и оборудования, их основные характеристики;
- чертежи и схемы в которых указаны этапы и последовательность выполнения демонтажных работ
Разработка проекта производства работ
Наша компания имеет опыт в подготовке ППР на монтаж резервуаров с 2016. За это время нам были разработаны десятки проектов для на объектах хранения нефти.
Перед началом составления ППР, наши специалисты особенно тщательно изучают проект организации строительства (ПОС), ведомость объемов работ и прочую исходную рабочую документацию.
В нашей работе мы всегда учитываем:
- особенности в подготовке строительной площадки и временных инженерных сетей на заводских и промышленных территориях;
- нюансы монтажа металлоконструкций РВС, в т.ч. объемом 20000 и более М3;
- детальная проработка раздела для устройства сварных соединений;
- описание работ кранами, погрузочно-разгрузочные работы для конструкций и материалов;
- технология сварки листов или монтажа рулона резервуара;
- оформление раздела - контроль качества;
- подготовка решений для пожарной безопасности;
- мероприятия для работы на высоте и вблизи зданий, сооружений.
Вы можете получить консультацию нашего специалиста, а затем услуги по составлению проекта. Заказать разработку ППР в нашей компании - самое правильное и оптимальное решение для вашего бизнеса. Также мы можем подготовить для вас полный комплект исполнительной документации.
ППР на ж.б. резервуар состоит из следующих технологических карт:
- ТК на земляные работы;
- ТК на бетонирование днища фундамента и стен;
- ТК на монтаж сборных ж.б. конструкций;
- ТК навивки напрягаемой арматуры на стены резервуара;
- ТК на гидравлические испытания резервуара;
- ТК на монтаж арматуры и установку оборудования.
ППР для зачистки резервуаров
ППР на зачистку резервуара относится к плановым работам, выполняемым в процессе эксплуатации хранилища. Любой резервуар с определенной периодичностью - раз в год или раз в два года требует промывки и очистки его внутренних поверхностей. В проекте подробно описываются все технологические этапы производства работ, состав бригад, регламент по устранению нежелательных осадков, меры по страховке рабочих и безопасному проведению эксплуатационных работ.



















































