Если вам необходима разработка ОС ППР, свяжитесь с нами по телефону, или оставьте заявку и наш специалист свяжется для уточнения деталей проекта.
Особо сложный ППР от ППР48
Наша компания занимается разработкой особо сложных ППР
Особо сложный проект производства работ (ППР) - это документ, который требует специальной экспертизы, знаний и навыков для его выполнения. В особо сложных ППР могут встречаться технические сложности, опасные условия работы, сложности в управлении и контроле, а также другие факторы, которые могут повлиять на успешное выполнение документа. В таких проектах необходимо строгое соблюдение требований по безопасности, а также высокий уровень профессионализма и координации работы команды.
Примеры особо сложных ППР могут включать в себя:
- Строительство или ремонт объектов на большой высоте, например, мостов, башен и небоскребов.
- Работы на нефтяных платформах или в других опасных условиях, таких как работа в радиоактивных зонах или в условиях высокой температуры или химического загрязнения.
- ППР, включающие большое количество стейкхолдеров и сложную координацию, такие как проекты по строительству международных аэропортов или комплексных инфраструктурных проектов.
Общим для всех этих проектов является то, что они требуют высокого уровня экспертизы и профессионализма, строгого соблюдения мер безопасности и тесной координации работы команды.
Компания "ППР48" - это опытная команда специалистов, которая специализируется на разработке и выполнении особо сложных проектов производства работ (ППР). Наша команда обладает высоким уровнем экспертизы и профессионализма, благодаря чему мы готовы решать самые сложные технические и управленческие задачи, связанные с выполнением проектов.
Мы понимаем, что особо сложные ППР могут включать в себя различные технические сложности, опасные условия работы, сложности в управлении и контроле и другие факторы, которые могут повлиять на успешное создание документа. Таким образом, мы гарантируем строгое соблюдение мер безопасности и высокий уровень координации работы команды для обеспечения безопасности наших клиентов и успешного выполнения проектов.
Наша компания успешно реализовала множество документов, включая строительство или ремонт объектов на большой высоте, таких как мосты, башни и небоскребы, работы на нефтяных платформах или в других опасных условиях, например, работа в радиоактивных зонах или в условиях высокой температуры или химического загрязнения, а также проекты, включающие большое количество стейкхолдеров и сложную координацию, такие как проекты по строительству комплексных инфраструктурных объектов.
Мы готовы предоставить нашим клиентам высококачественные услуги, включая разработку проектной документации, выполнение документации, контроль качества, управление проектами и многое другое. Наша команда обладает необходимыми знаниями и навыками, чтобы превзойти ожидания наших клиентов и обеспечить успешное выполнение поставленных перед нами задач.
Обращайтесь к нам, если вам нужна помощь в реализации проектов, требующих высокой квалификации и навыков. Мы готовы предоставить нашим клиентам индивидуальный подход, чтобы удовлетворить их уникальные потребности и обеспечить успешную разработку документации.
Общие требования к проектам производства работ
В соответствии с СП 48.13330 0 ППР относится к организационно-технологической документации. Целью разработки ППР является определение наиболее эффективной (с точки зрения минимизации сроков и стоимости при соблюдении качества и техники безопасности) технологии (технологические процессы и операции) для строительства в соответствии с решениями проектной и рабочей документации, требованиями к качеству и его контролю, требованиями к длительности выполнения технологических процессов и операций, использованию ресурсов, исполнению мероприятий по безопасности.
По некоторым зданиям и сооружениям для строительно-монтажных работ в этих зданиях/сооружениях должны разрабатываться ОС ППР.
Для целей установки грузоподъемных машин, организации и выполнения строительно-монтажных работ с их применением должен быть разработан проект производства работ грузоподъемными кранами (ППРк). Разработка, согласование и утверждение ППРк должны осуществляться в соответствии с РД-11-06 0.
При строительстве крупных и сложных объектов следует разрабатывать ППГР в соответствии со СНиП 3.01.03 0.
ППР должен обеспечивать использование высокоэффективных процессов производства, малоотходной и ресурсосберегающей технологии, сварочных полуавтоматов и автоматов, переносных труборезов и гайковертов, комплексной механизации, прогрессивного оборудования и материалов, современных автоматизированных систем, а также снижение материалоемкости, трудоемкости и стоимости строительства, сокращение его продолжительности за счет передовых методов организации строительства, в том числе максимальной унификации средств технологического оснащения для производства работ одного вида.
Технические и организационные решения, принимаемые в составе ППР, должны быть апробированы прежним опытом, испытаниями, исследованиями или опытом эксплуатации прототипов, а также соответствовать требованиям нормативных документов.
Общие требования к составу и содержанию проектов производства работ
ППР состоит из графической и текстовой (пояснительной записки) частей.
Состав и степень детализации материалов, разрабатываемых в ППР, устанавливаются в задании на разработку ППР, исходя из специфики и объема выполняемых работ.
В соответствии с СП 48.13330 решения ППР должны обеспечивать выполнение всех мероприятий по созданию условий выполнения работ на объектах капитального строительства.
В соответствии с СП 48.13330 ППР должен содержать мероприятия по охране труда и безопасности при строительстве, которые должны включать в себя требования безопасности к обустройству и содержанию производственных территорий, участков работ и рабочих мест в соответствии с СНиП 12-03-2001.
Для предупреждения падения работающих с высоты в проектных решениях следует предусматривать в обязательном порядке специальные требования, предусматривающие комплексные мероприятия по обеспечению безопасных условий при выполнении работ на высоте (СНиП 12-03-2001 Приложение Ж), где особое внимание должно быть уделено требованиям:
- к местам и способам крепления страховочных канатов и предохранительных поясов по ГОСТ Р 50849-96;
- к первоочередному устройству постоянных и временных ограждающих конструкций;
к составу и конструкции средств подмащивания:
- Высота расположения рабочего настила средств подмащивания и его нахождение по отношению к зоне работ должны обеспечивать возможность выполнения трудовых операций в пределах зоны досягаемости;
- Размеры рабочего настила и конструкция подмостей должны обеспечивать возможность размещения материалов, оборудования и работников с учетом обеспечения габаритов прохода, а также восприятия передаваемой на настил нагрузки.
Требования к наличию защитного ограждения. к способам подъема работников к местам производства работ.
Порядок разработки, согласования и утверждения особо сложных проектов производства работ
За разработку ОС ППР отвечает Генеральный подрядчик. В отдельных случаях Застройщик (или Технический заказчик) может назначить Генерального проектировщика ответственным за разработку некоторых ОС ППР по перечню, согласованному с Генеральным подрядчиком и Генеральным проектировщиком.
Ответственный за разработку ОС ППР может заключить договор со специализированной организацией для разработки ОС ППР. При этом организация-заказчик ППР обязана своевременно передать разработчику ОС ППР задание с необходимыми исходными данными и обеспечить рассмотрение, согласование и утверждение ОС ППР. При разработке ОС ППР, в т.ч. специализированной организацией, субподрядные строительно-монтажные организации обязаны предоставлять сведения, необходимые для разработки ОС ППР по запросу Генерального проектировщика или Генерального подрядчика.
Общий процесс разработки, согласования и утверждения ОС ППР должен производиться в соответствии с Приложением. Процедуры разработки, согласования и утверждения ОС ППР уточняются в договорах участников строительства.
ОС ППР, разработанный для применения на территории действующего предприятия, должен быть согласован с организацией, эксплуатирующей это предприятие, или ее филиалом.
ОС ППР для горнопроходческих, взрывных и других потенциально опасных работ должен быть согласован также с органом Ростехнадзора.
Общие требования к содержанию особо сложных проектов производства работ
- Титульный лист
- Содержание
- Исходные данные
- Общие указания
- Календарный план производства работ
- Строительный генеральный план
- График поступления строительных конструкций, изделий, материалов и оборудования
- Локальный график производства работ
- График движения рабочих кадров по объекту
- График движения основных строительных машин по объекту
- Ведомость необходимой технологической оснастки, в случае индивидуального изготовления – чертежи
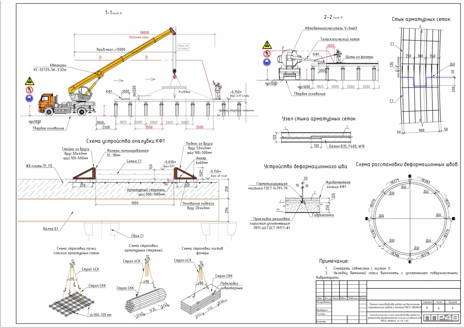
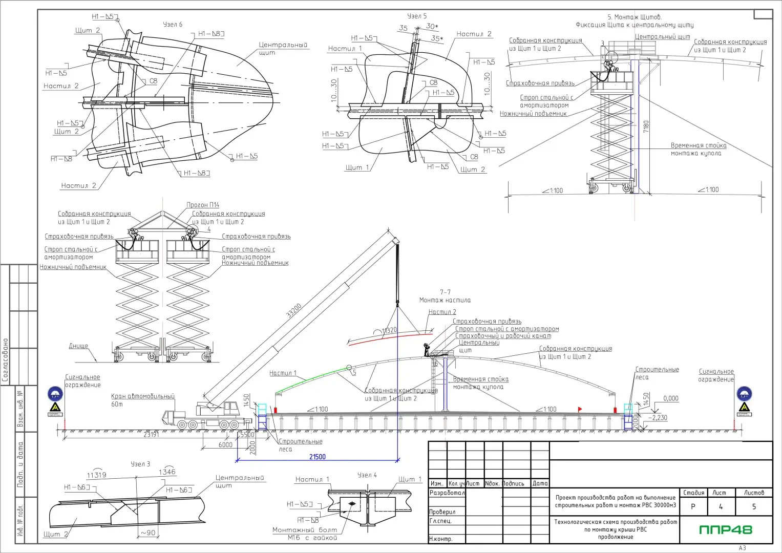
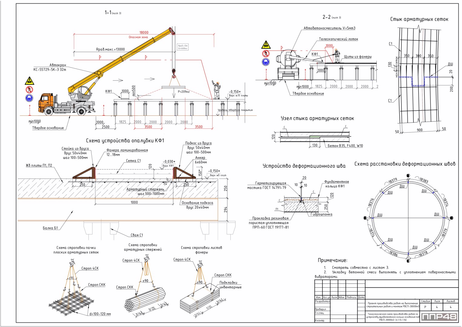
- Схемы монтажа и другие схемы (установки, кантовки и т.д.)
- Схемы строповки грузов и конструкций. Схемы складирования (при необходимости)
- Схемы движения рабочих к месту работы по фронтам работ с указанием зон отдыха, лестниц, переходов, временных укрытий и т.д.
- Перечень технологического инвентаря и оснастки для выполнения строительных работ
- Технология выполняемых работ или технологические карты на выполнение видов работ (при необходимости и по решению разработчика ППР)
- Перечень исполнительной и технической документации, оформляемой в ходе выполнения и приемки работ
- Визуальная модель производства работ
- Операционный контроль качества работ (карты, схемы)
- Ссылочные материалы (при необходимости) прилагаемые
- Пояснительная записка
- Решения, принятые на основании ППГР
- Решения по прокладке временных сетей водо-, тепло-, энергоснабжения и освещения строительной площадки и рабочих мест
- Обоснования и мероприятия по применению мобильных форм организации работ, режимы труда и отдыха
- Решения по производству работ, включая зимнее время
- Потребность и привязка городков строителей и мобильных (инвентарных) зданий
- Потребность в основных и вспомогательных материалах
- Мероприятия по обеспечению сохранности материалов, изделий, конструкций и оборудования на строительной площадке
- Природоохранные мероприятия
- Мероприятия по охране труда и обеспечению промышленной безопасности
- Технико-экономические показатели, включая объемы и продолжительность выполнения строительно-монтажных работ, а также их себестоимость в сопоставлении со сметной, уровень механизации и затраты труда на 1 м3 объема, 1 м2 площади здания, на единицу физических объемов работ или иной показатель, принятый для определения производительности труда
- Ведомость дополнительных объемов, работ и материалов, не учтенных в РД
- Мероприятия по обеспечению пожарной безопасности
- Мероприятия при ЧС


















































