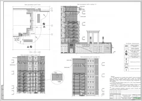
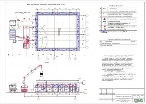
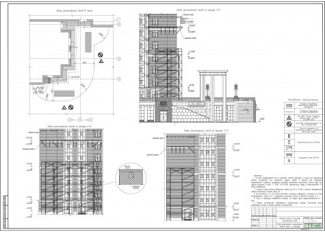
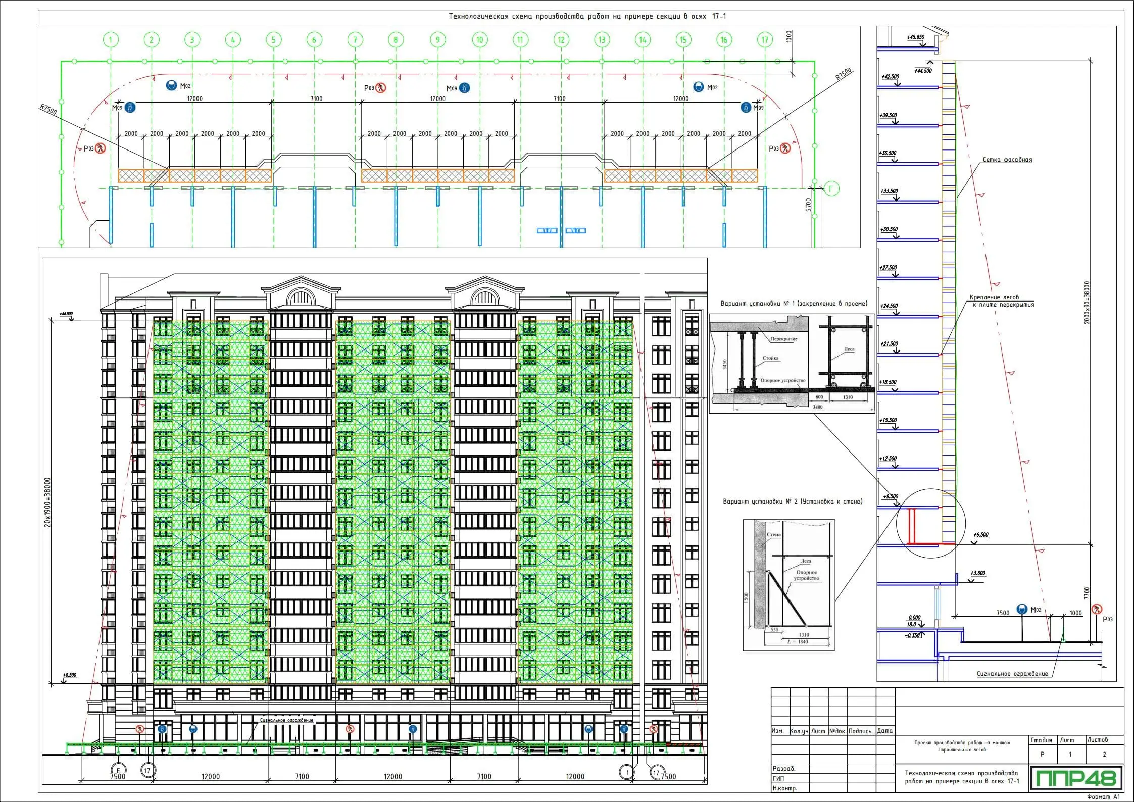
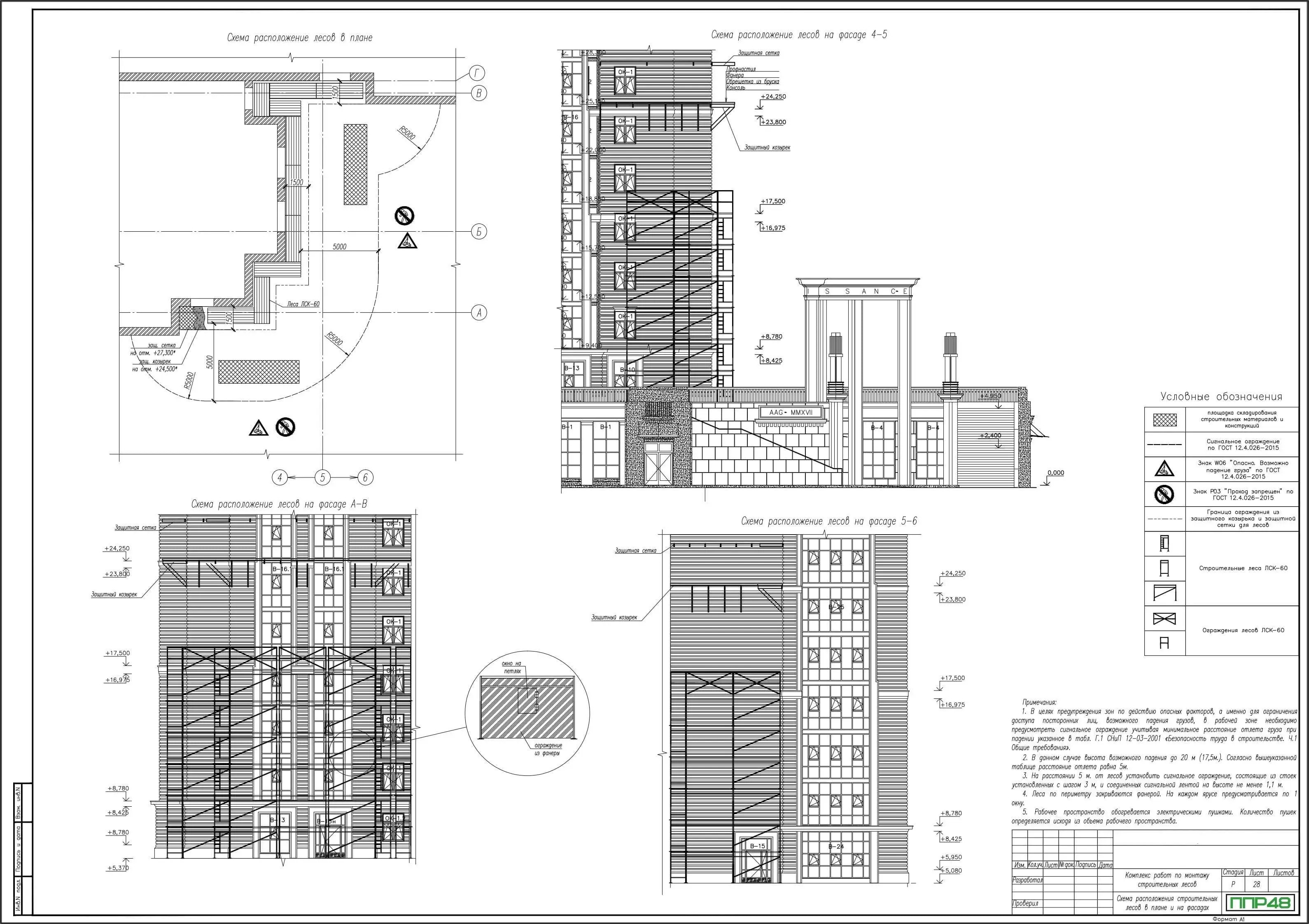
Особенности разработки ППР на работы с лесов
Наша компания успешно выполнила более 100 проектов на монтаж строительных лесов для заказчиков из разных регионов РФ, На начальном этапе разработки ППР мы запрашиваем у наших заказчиков исходные данные (ИД). После изучения ИД наши специалисты приступают к подбору конструкций с наиболее подходящими техническими характеристиками для конкретного случая. По способу устройства монтажных соединений, леса бывают следующих типов: хомутовые, рамные, штыревые, клиновые.
Основными факторами, влияющими на выбор строительных лесов, являются:
- Высотная отметка производства работ;
- Геометрическая конфигурация фасада здания или сооружения;
- Основной вид работ, для выполнения которого устанавливаются средства подмащивания;
- Ветровые нагрузки, нагрузки на строительные конструкции и сами леса.
Безопасные работы на высоте возможны только при соблюдении всех требований ППР монтажа лесов.

















































