Разработка ППР на устройство кладки
Мы знаем как должен выглядеть качественный ППР на кирпичную кладку стен
ППР на устройство кладки из кирпича отвечает на вопросы по основным направлениям, среди которых:
- организация подготовительных мероприятий;
- требования к местам складирования материалов;
- принятие последовательности и способов выполнения работ;
- рекомендации по устройству ограждений на стройплощадке;
- требования по расчистке территорий, средств подмащивания;
- организация подъездных путей;
- указания мест расположения техники, грузоподъемного оборудования;
- меры по обеспечению охраны труда и противопожарной безопасности.
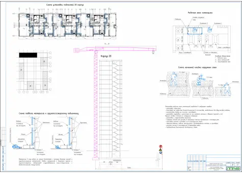
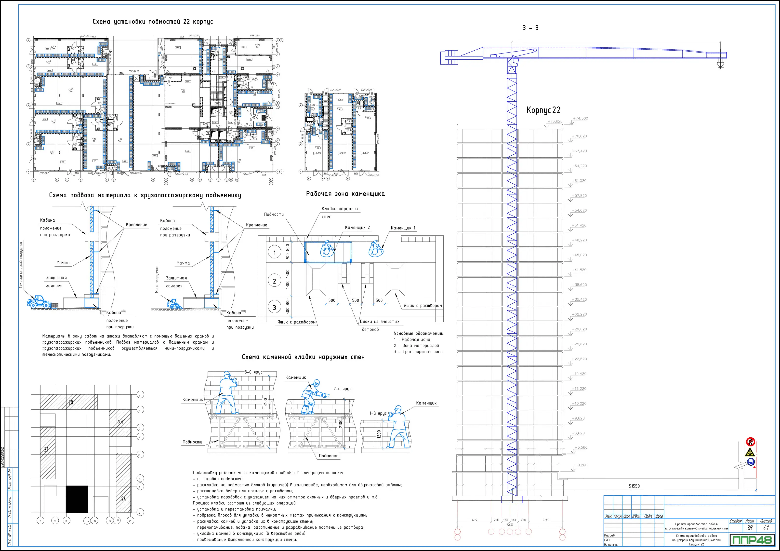
При наличии нескольких видов кладок, указанных в проектной спецификации, в ППР включают технологические карты. Для каждого вида кладки предназначается своя отдельная карта. ТК на устройство несущих стен или перегородок содержит в себе детализированные решения, которые относятся целому ряду небольших технологических операций.
Последовательное сопровождение всех операций в соответствии с инструкцией - ППР приводит к таким результатам, как:
- Завершение работ в предусмотренный срок;
- Выбор подходящей оснастки для занятых на объекте работников;
- Предоставление технадзору готового объекта с высокими показателями качества;
- Подписание комплекта разрешительных документов, актов и схем, указанных в проекте.
ППР на устройство кладки стен из газобетонных блоков
Особенности которые учитывают при подготовке ППР:
- описание свойств газобетонных блоков и требования к ним из строительных норм;
- технические характеристики клея для кладки;
- рекомендации по подготовке рабочих зон, доставке, складированию и хранению материалов;
- требования по приготовлению и нанесению составов;
- указания по укладке рядов из блоков;
- описание технологии армирования кладки;
- рекомендации по устройству перемычек;
- требования к контролю качества работ;
- инструкции по ТБ, пожарной, экологической безопасности, охране труда;
- перечень всех необходимых инструментов и расходных материалов для кладки с их наименованием и характеристиками (представлено в виде таблицы)
В комплексном ППР, разрабатываются решения для возведения наружных стен из блоков, облицованных кирпичом. Строительные организации строго соблюдают предписания проектов на каменную кладку, поэтому не испытывают трудностей при сдаче объекта. В некоторых случаях документ помогает исправить недочеты, выявленные в результате анализа рабочей документации. В рамках его создания возможна доработка проектных узлов, с учетом требуемых или вынужденных изменений. Поэтому ППР с проектными доработками, на титульном листе которого поставлен штамп от заказчика “Утверждено в работу” подтверждает то, что состав, объем и качество работ, а также внешний вид конструкций, являются согласованными и достоверными. Экземпляр ППР по устройству кладки стен и перегородок можно ЗАГРУЗИТЬ ЗДЕСЬ.













































