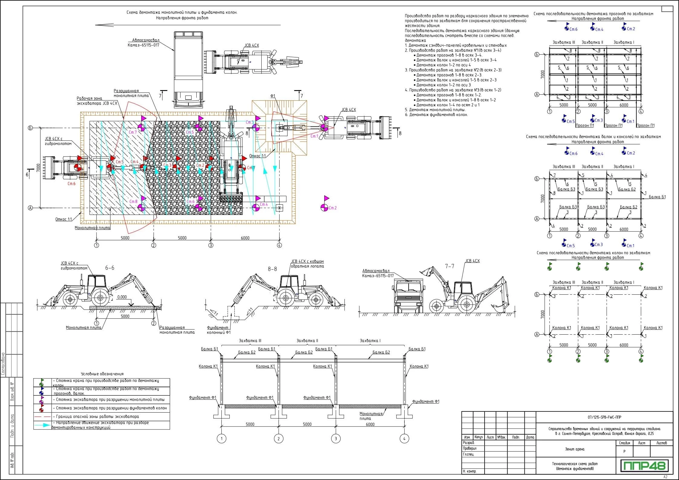
Наша компания оказывает услугу по разработке ППР на демонтаж фундаментов любых типов и видов, как в обычных условиях так и в стесненных. Данный проект входит в линейку ППР на демонтаж зданий.
Разработка ППР на демонтаж фундамента от ППР48
От 2х дней. От 25 тысяч рублей. Бесплатное устранение замечаний. 100% гарантия согласования.
Организовать безопасное удаление фундаментных конструкций проще с профессиональным и своевременно подготовленным проектом производства работ. Компания «ППР48» оказывает услуги по созданию ППР на демонтаж фундаментов различной сложности для строительных участков всех типов.
Данные которые передаются в компанию ППР 48 для разработки ППР на демонтаж фундаментов

Для подготовки проекта производства работ (ППР) по демонтажу фундаментов заранее собирают необходимые сведения о площадке и конструкциях. Полный комплект исходных данных помогает правильно выбрать технологию демонтажа, снизить риски и обеспечить соответствие требованиям.
Какие сведения нужны:
-
Проектная и рабочая документация
Чертежи и схемы, на которых основан демонтаж фундаментов: рабочие проекты, конструктивные схемы, чертежи элементов. -
Проект организации демонтажа или стройгенплан
План выполнения сноса и общий план площадки с указанием рисков, перемещения техники и зон доступа. -
Сведения о технике и оборудовании
Информация о предполагаемых механизмах, инструментах, оснастке. Если перечня нет — специалисты ППР могут подобрать необходимые варианты. -
График демонтажа
Указание сроков или примерных дат проведения работ, при необходимости — календарный график. -
Фотоматериалы объекта
Фотографии фундаментов и участка демонтажа для точной оценки состояния конструкций и условий. -
Ведомость объёмов
Документы с расчётами и списками объёма демонтажных работ. -
Технические заключения
Документы и обследования, подтверждающие текущее состояние фундаментов и коммуникаций.
Рекомендации:
- Желательно предоставлять данные в редактируемых электронных форматах (DWG, DOCX и др.) — это ускоряет работу.
- Чем полнее собран комплект документации, тем быстрее и качественнее готовится ППР и снижается число дополнительных запросов.
Почему за разработкой ППР на демонтаж фундаментных конструкций стоит обратиться именно к нам

Наши преимущества:
- Разрабатываем ППР для всех регионов России, в наличии опыт с крупными промышленными фондами и объектами с особенностями грунтов;
- Всегда бесплатно дорабатываем документацию до вашего полного согласования;
- Используем современный подход к оценке и минимизации рисков, подробно отражаем схемы защиты грунта, конструкций и коммуникаций;
- Получаете комплект разрешительной документации, соответствующий требованиям действующих СП, ГОСТ и норм по охране труда;
- Ускорение прохождения согласований и отсутствие претензий со стороны надзорных служб
Оставьте заявку или направьте ваши исходные материалы — мы быстро рассчитаем примерную цену и времена выполнения, а также дадим необходимые рекомендации по демонтажу оснований именно под ваш объект.
Ключевые этапы нашей работы
Как мы работаем:
- Анализируем представленные клиентом данные и при необходимости направляем запросы на уточнение параметров объекта;
- Формируем техническое задание с перечнем исходной информации и условиями проведения работ;
- Разрабатываем текстовую и графическую части проекта, определяем порядок устранения фундамента, находим оптимальные способы извлечения фрагментов (резка, разрушение, дробление);
- Предоставляем заказчику проект на рассмотрение;
- После учёта замечаний и возможной корректировки вы получаете итоговый документ, который позволяет вам совершенно беспрепятственно вести свои работы;
- При необходимости оказываем консультационное сопровождение на время выполнения работ.
Компания ППР48 - надежный партнер в сопровождении вашего объекта организационно-технологической и исполнительной документацией




































