Данный проект входит в группу ППР для подъемных сооружений
ППР на монтаж и работу с лебедкой от ППР48
Профессиональная разработка ППР. От 25 тысяч рублей. От 2х дней. Бесплатное устранение замечаний. 100% гарантия согласования.
Особенности разработки ППР для работ с использованием лебедок
Разработка ППР для проведения работ с использованием лебедок всегда требует тщательного выбора организационно-технологических решений, которые должны соответствовать как исходному проекту, так и специфике применяемого оборудования. В каждом ППР учитывается технология работ с лебедками, их тип (ручные, электрические тельферы, стационарные, передвижные), а также конструктивные детали, определяющие последовательность операций и специфику безопасной эксплуатации в промышленных условиях. Как правило, работы с тяжелыми элементами конструкций на промышленных объектах, таких как заводы и фабрики, организуют с применением подъемных сооружений — лебедок разного типа. Поэтому в содержании такого ППР обязательно присутствуют технологические карты (ТК) на использование выбранных лебедок, схемы размещения оборудования и вспомогательных приспособлений, а также расчеты опасных зон и комплекс мероприятий по обеспечению безопасности согласно Приказу №461 от 26.11.2020.
Содержание и наполнение ППР определяются особенностями объекта и характеристиками применяемых лебедок:
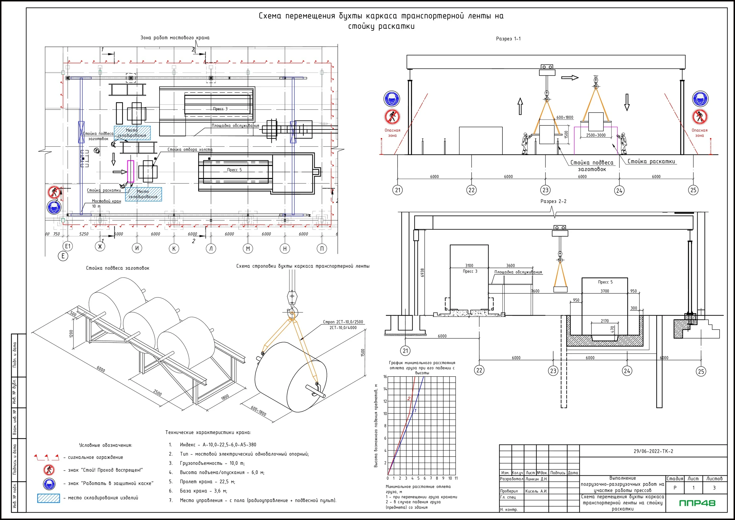
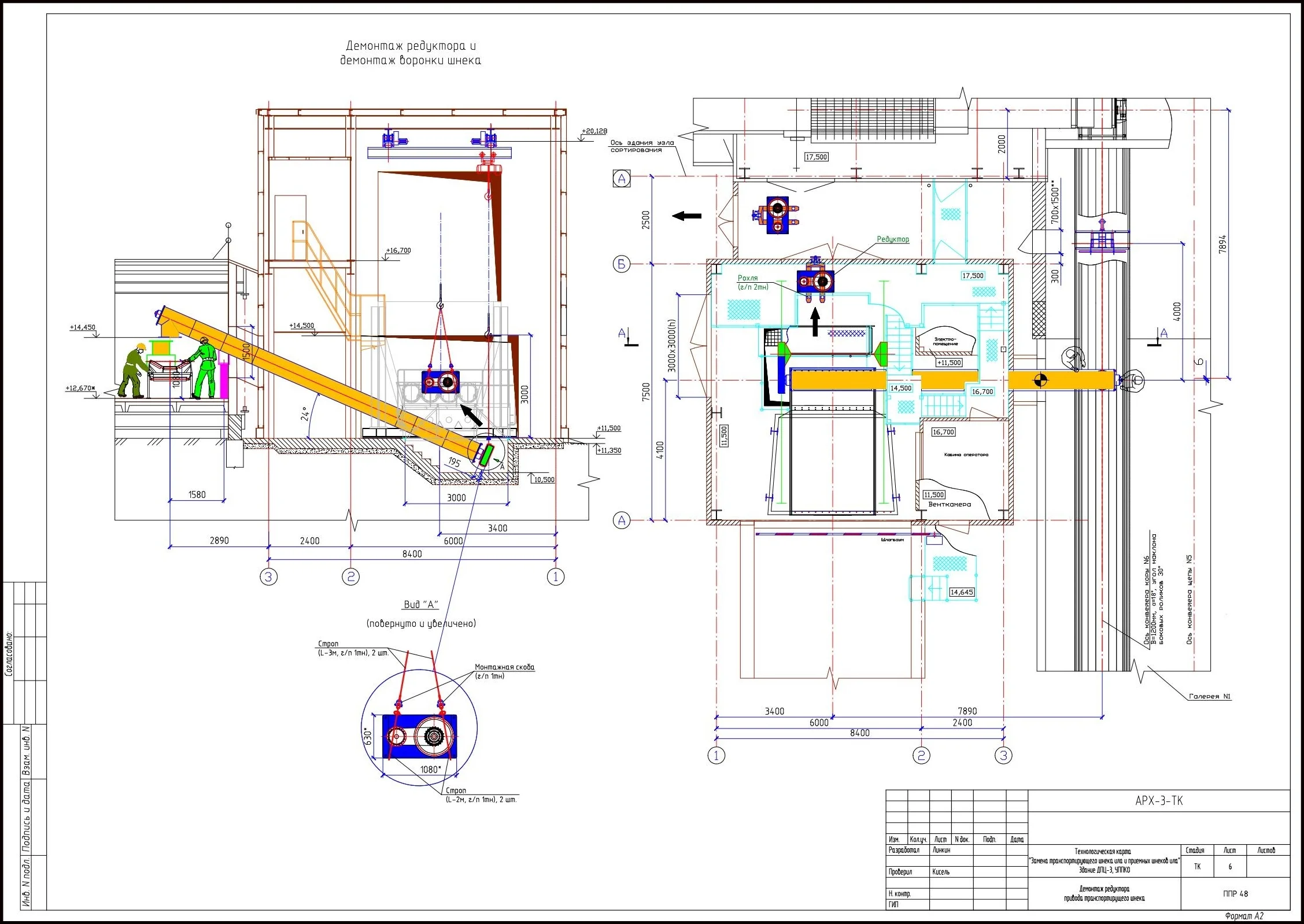
Для ручных и электрических лебедок разрабатываются технологические карты на выполнение подъемно-спусковых операций, схемы крепления к постоянным или временным опорам, а также меры по контролю состояния троса и блокировок.- В ППР для монтажных работ с использованием лебедок особое внимание уделяется схемам строповки, расчету максимальных нагрузок, организации безопасных рабочих зон, а также требованиям по обслуживанию и техническому осмотру лебедочного оборудования.
Только команда опытных специалистов сможет учесть все нюансы и потенциальные риски организации работ с лебедками на промышленных площадках, сформировать оптимальные, а главное — безопасные решения для вашего предприятия. Наши инженеры обладают необходимой экспертизой для подготовки профессионального ППР, полностью соответствующего Приказу №461 и особенностям вашего объекта. Если вам требуется быстрое согласование проекта и качественная документация, — обращайтесь за консультацией. Мы оперативно подготовим расчет стоимости разработки ППР для вашего предприятия.
Расчет стоимости оказания услуг по подготовке ППР на монтаж и работу с лебедкой
Наша компания разрабатывает организационно-технологическую документацию для работ с подъемными сооружениями, в том числе с лебедками, широко используемыми на промышленных предприятиях, заводах и фабриках, с 2016 года. Прежде чем рассчитать сроки и стоимость оказания услуг, главный инженер нашей компании всегда тщательно анализирует предоставленную исходную рабочую документацию и детали технического задания. Это позволяет точно определить стоимость и сроки подготовки проектной документации.
В основе ценообразования лежат следующие ключевые факторы:
-
Полнота и качество исходной рабочей документации.
Отсутствие или неактуальность документации на лебедки и чертежей зданий в которых производятся работы повышает трудоемкость для инженерного центра. В таких случаях требуется дополнительное время на восстановление проектных данных, разработку схем и решений по работе лебедочного оборудования в соответствии с требованиями Приказа №461, что увеличивает конечную стоимость КП по сравнению с объектами, для которых представлен полный комплект исходных материалов. -
Количество технологических операций и элементов для подъема и опускания лебедкой.
Каждый вид работ с лебедками, даже самый незначительный этап работы оборудования, должен быть отражен практически во всех разделах ППР. Это принципиально для качественной подготовки документов, обеспечивающих безопасные условия труда на предприятии. -
Количество схем строповок и складирования материалов.
Как и в предыдущем пункте, увеличение числа операций и единиц оборудования сказывается на объеме графической части ППР: чем больше требуется чертежей, схем установки лебедок, разработки карт опасных зон и технических решений, тем выше стоимость комплекса услуг.
Каждая ситуация на промышленном объекте уникальна, и подход к расчету стоимости — индивидуален. Оставьте заявку на консультацию — наш менеджер свяжется с вами, чтобы подробно обсудить все аспекты и рассчитать оптимальную стоимость разработки ППР для вашего предприятия с учетом всех требований безопасности и действующего законодательства.




































