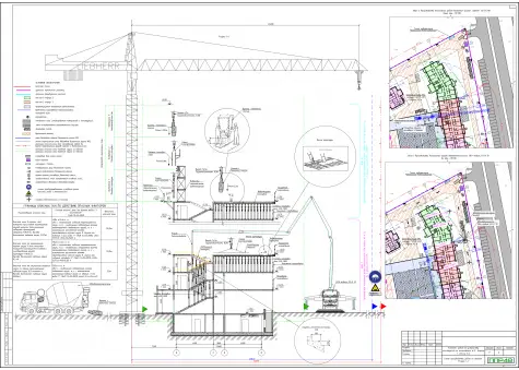
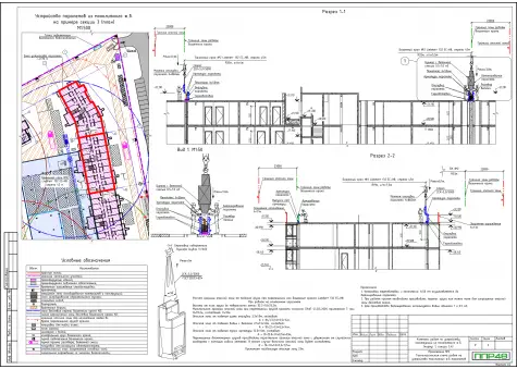
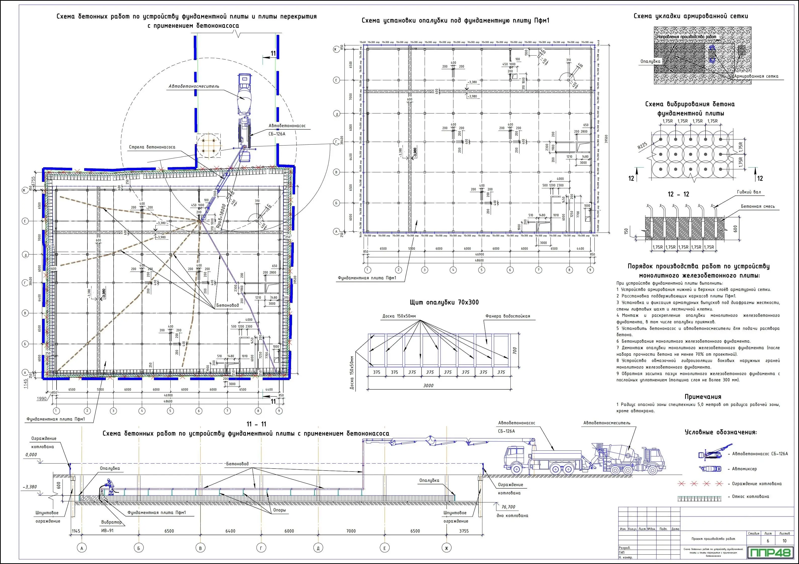
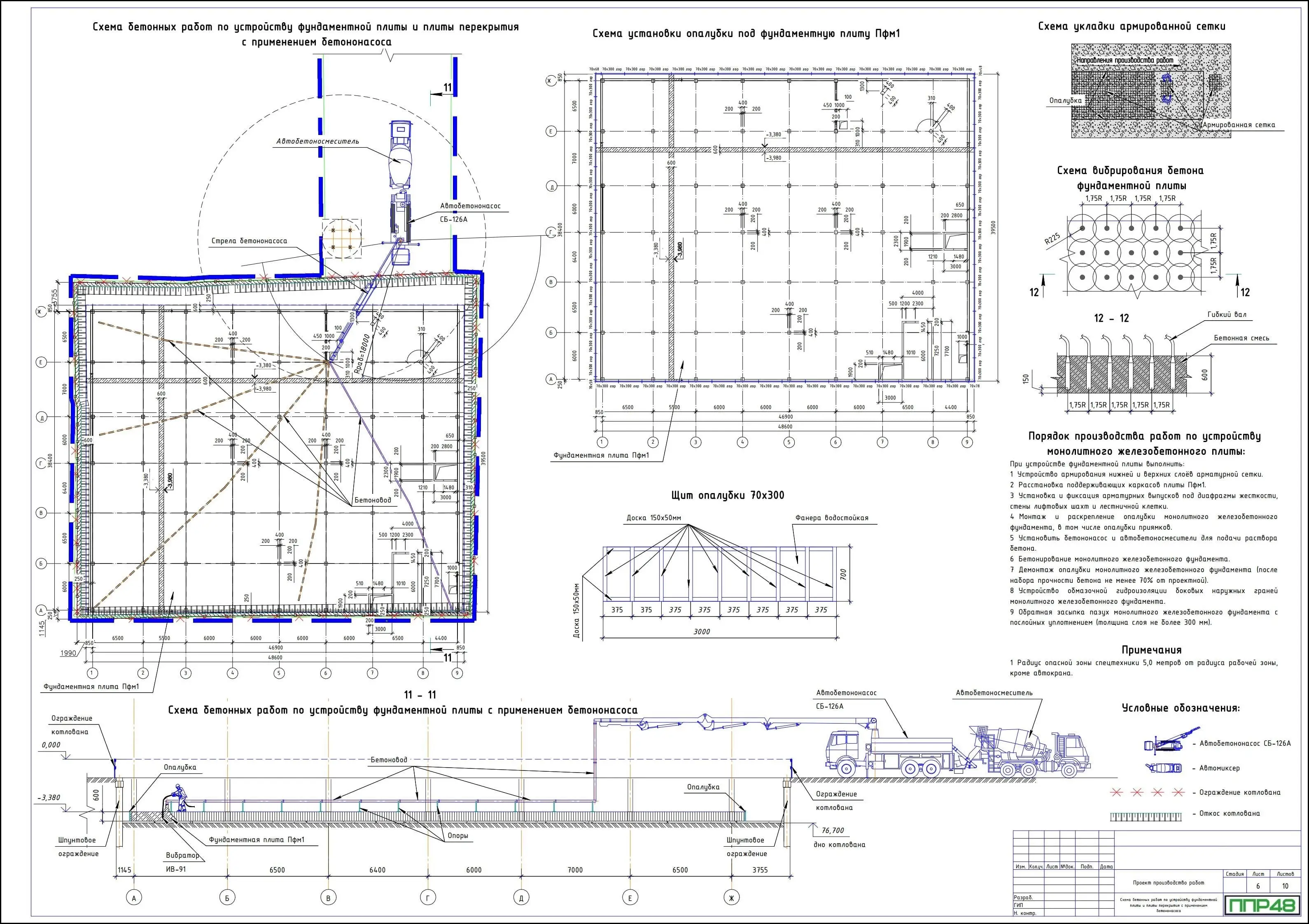
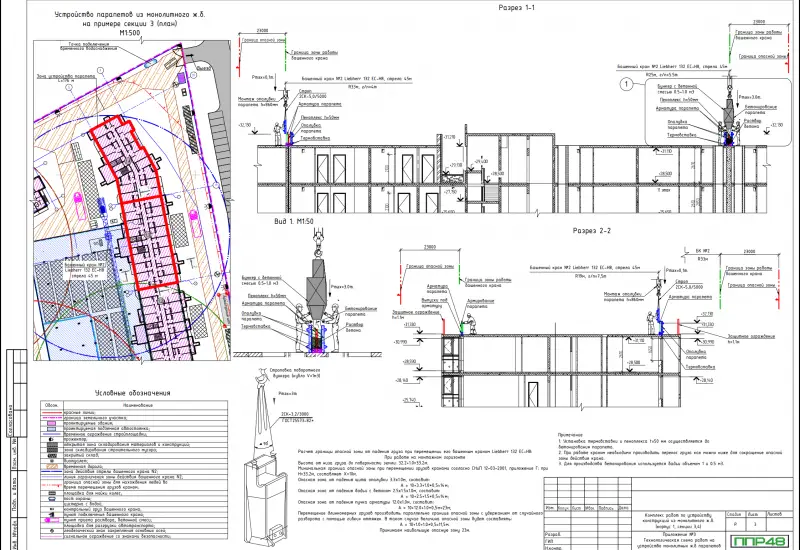
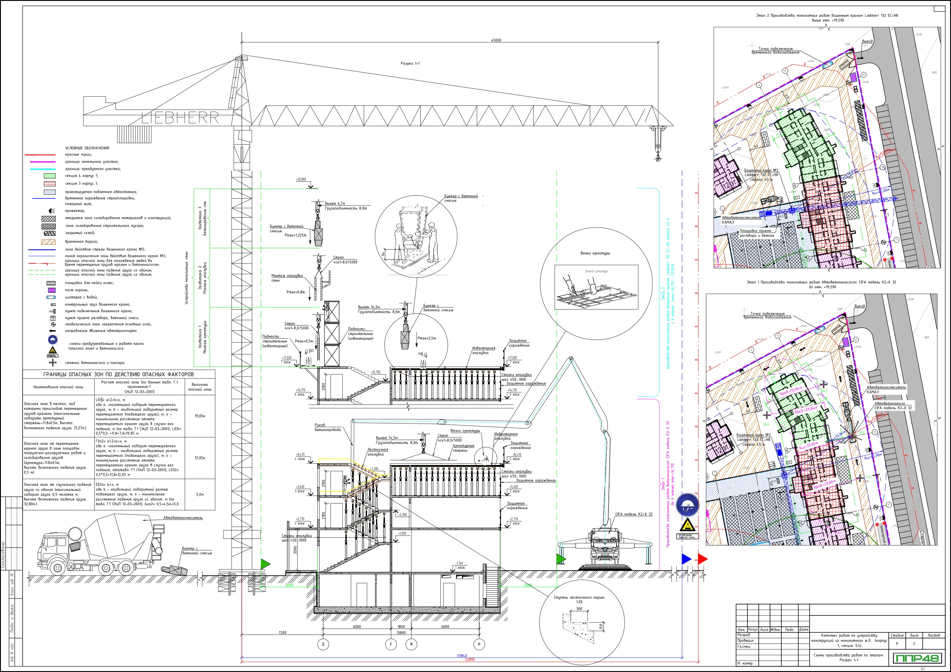
Виды проектов производства работ на бетонирование монолитных конструкций
Основными типами проектов производства работ, выполнением которых занимаются сотрудники нашей организации являются:
- ППР на бетонирование фундаментной плиты;
- ППР на бетонирование конструкций каркаса здания;
- ППР на бетонирование подпорных стен;
- ППР на устройство причалов
Это наиболее часто встречающиеся виды проектов с которыми нами приходится сталкиваться, но мы способны разработать проект практически любой вид конструкции и способ ее бетонирования.













































