Виды ППР на монтаж строительных конструкций
Наша компания оказывает комплекс услуг на монтаж строительных конструкций любых видов и типов. Список наиболее часто встречающихся в нашей практике типы проектов на монтаж конструкций:
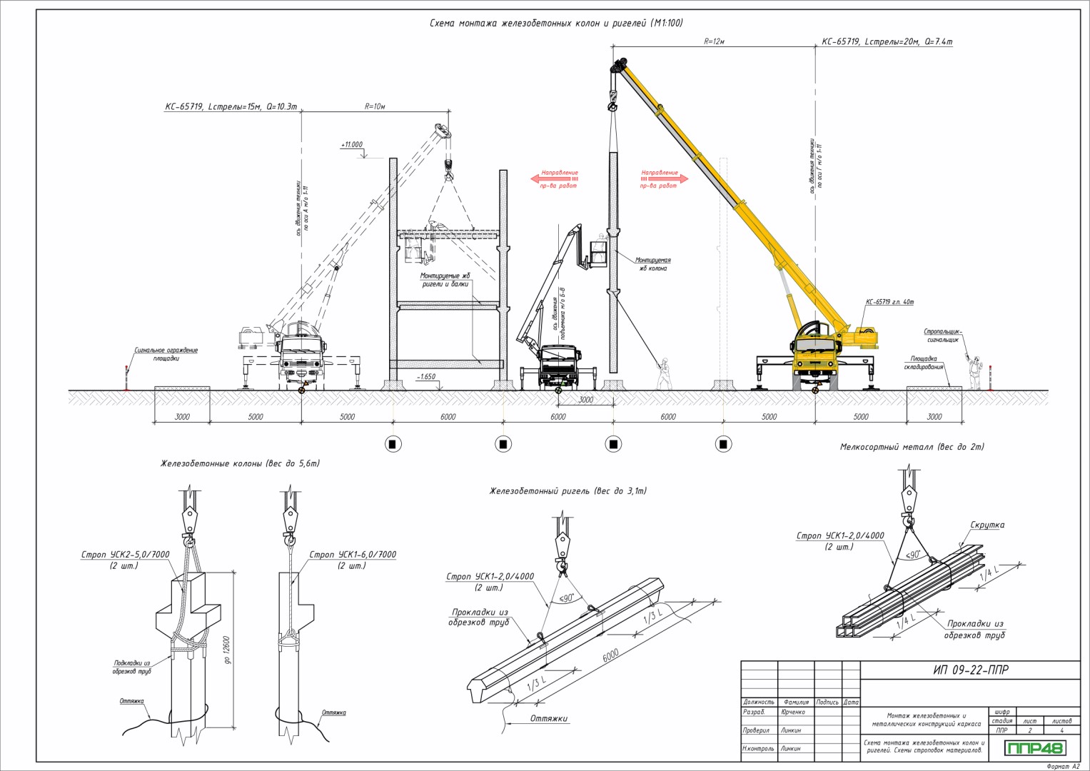
- ППР на монтаж конструкций металлических;
- ППР на монтаж крана;
- ППР на монтаж сэндвич-панелей;
- ППР на монтаж конструкций из сборного железобетона
В нашей работе мы всегда учитываем особые технические условия заказчика, например стесненные условия или работы в охранной зоне инженерных сетей и.т. Благодаря этому наши проекты получаются адаптированными под требования всех надзорных органов и эксплуатирующих служб, что в свою очередь благоприятно влияет на процесс согласования документации.




























