ППР48
 

Разработка ППР на строительство и ремонт здания

От 5 дней. От 50 тысяч рублей. Бесплатное устранение замечаний. 100% гарантия согласования.
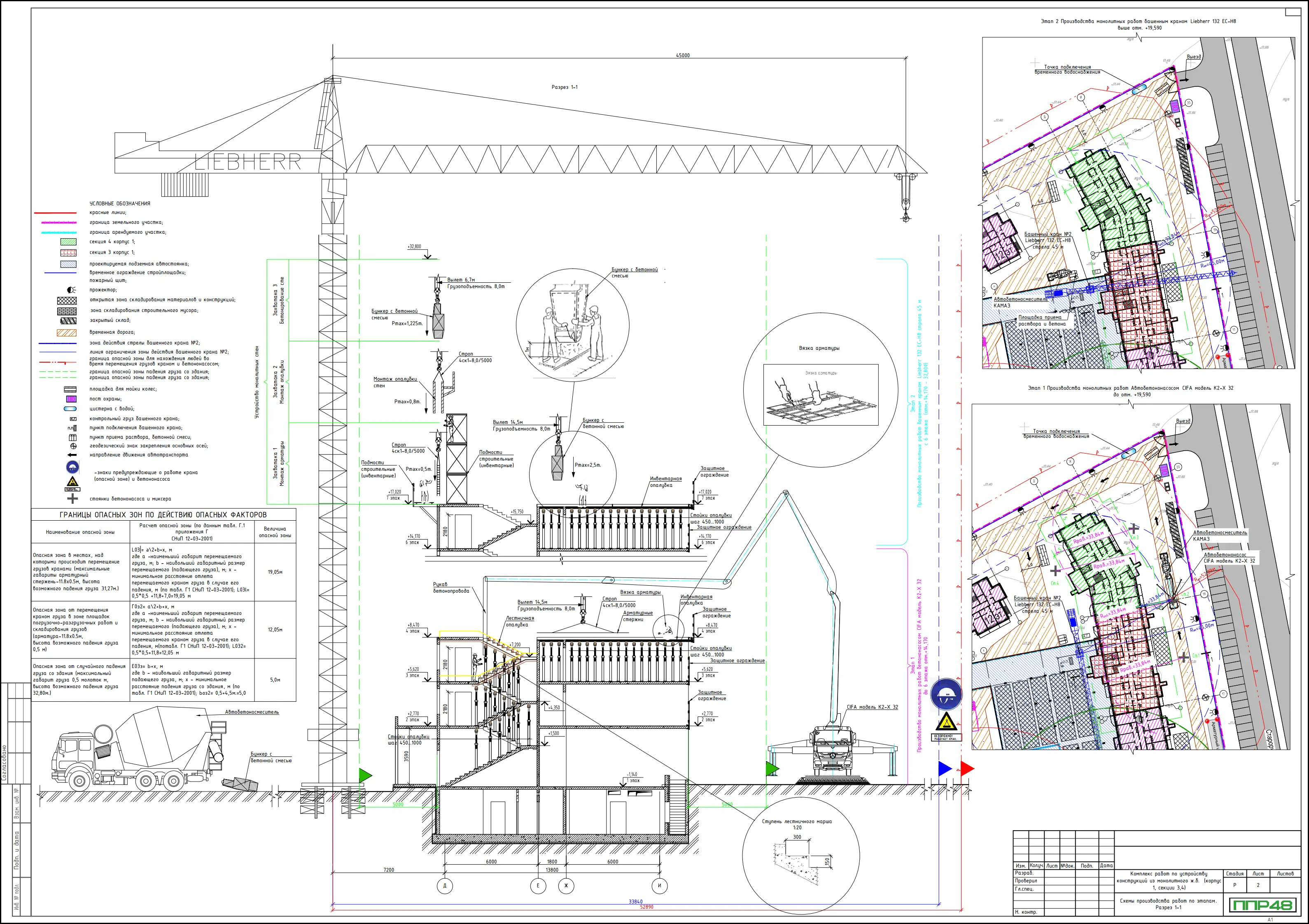
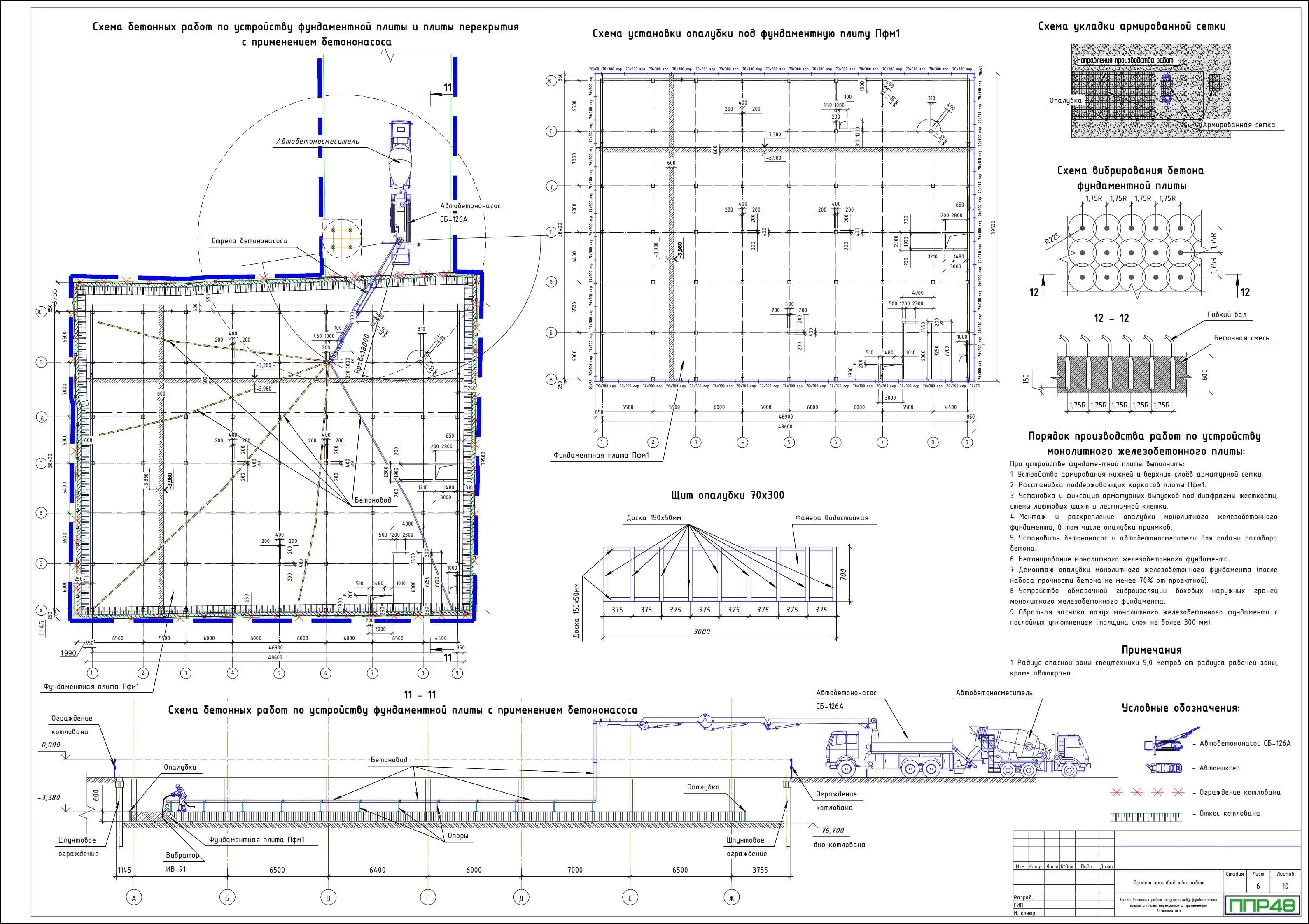
ППР на возведение зданий и сооружений может состоять из большого количества отдельных технологических карт. ППР на строительство дома - комплексный проект, в котором рассматриваются все технологические этапы возведения инженерного сооружения.
 
проект производства работ (ППР) на строительство здания

Все здания делятся на четыре основные группы:

ППР данного типа разрабатывают как на весь объект целиком, так и на его отдельные части. Во втором случае необходимо подготовить несколько документов - по одному на каждый этап строительства.

 

проект производства работ (ППР) на ремонт здания

Состав ППР на строительство жилого здания 

Разработка ППР  должна производиться с учетом требований CП 54.13330.2016.

Документ можно условно разбить на несколько основных разделов:

  1. Подготовительный период;
  2. Мероприятия нулевого цикла;
  3. Возведение каркаса здания;
  4. Устройство каменных и армокаменных конструкций;
  5. Операции по устройству фасадов и кровли;
  6. Отделочные работы;
  7. Монтаж инженерных систем.

Для каждого из вышеперечисленных этапов строительства, в составе проекта разрабатывается своя отдельная отдельная технологическая карта. 

ППР на монтаж промышленного здания

ППР на строительство промышленных зданий

Строительство производственных и административных промышленных зданий имеет ряд отличительных особенностей, которые должны быть отражены в ППР. В проектах данного типа, наиболее часто применяют такие виды фундаментов, как ленточный или столбчатый. В большинстве случаев фундаменты выполняются из сборного или монолитного железобетона.

Что касается конструктивной схемы, то каркасы промышленных зданий бывают следующих типов:

  • монолитные;
  • из сборных железобетонных конструкций;
  • из сборно-монолитного железобетона.;
  • из металлоконструкций;
  • комбинированные каркасы.

Во внутренних пространствах цехов, складов и ангаров могут монтироваться такие конструкции как:

  • конвейерные галереи;
  • фундаменты под технологическое оборудование;
  • подкрановые балки;
  • эстакады и лестницы и т.д.

В процессе разработки проекта, следует придерживаться общих строительных принципов, а также требований нормативов, актуальных при использовании в данной строительной отрасли.

проект производства работ (ППР) на строительство сооружения

Требования к ППР на возведение общественных зданий и сооружений

Проект на строительство общественного здания разрабатывают с учетом требований СП 118.13330.2012*. Строения общественного назначения имеют свои конструктивные особенности. В процессе их возведения необходимо смонтировать значительный объем металлических и светопрозрачных конструкций. Также, зачастую проектом предполагается  установка большого количество грузопассажирских лифтов. В связи с этим, в состав ППР необходимо включить соответствующие разделы, в которых содержатся практические указания, позволяющие решать задачи поставленные перед сотрудниками подрядной организации. Общественные здания являются объектами повышенного внимания со стороны контролирующих органов. Поэтому разделы ППР по охране труда и пожарной безопасности следует прорабатывать наиболее тщательным образом.

Сколько стоит разработка проекта производства работ на строительство здания?

Стандартный

Формат PDF
от 51.000р.

Состав проекта:

- Пояснительная записка (ПЗ) по  СП 48.13330.2019;

- Графики работ - 2 шт.;

- Строительный генеральный план (чертеж AutoCAD);

- Графические схемы работ (чертежи Автокад) - от 2 листов.

Детализированный

Формат PDF
от 72.000р.

Состав проекта:

- Пояснительная записка (ПЗ) по  СП 48.13330.2019;

- Графики работ - 4 шт.;

- Строительный генеральный план (чертеж AutoCAD);

- Графические схемы работ (чертежи Автокад) - от 6 листов.

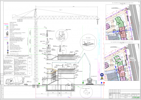
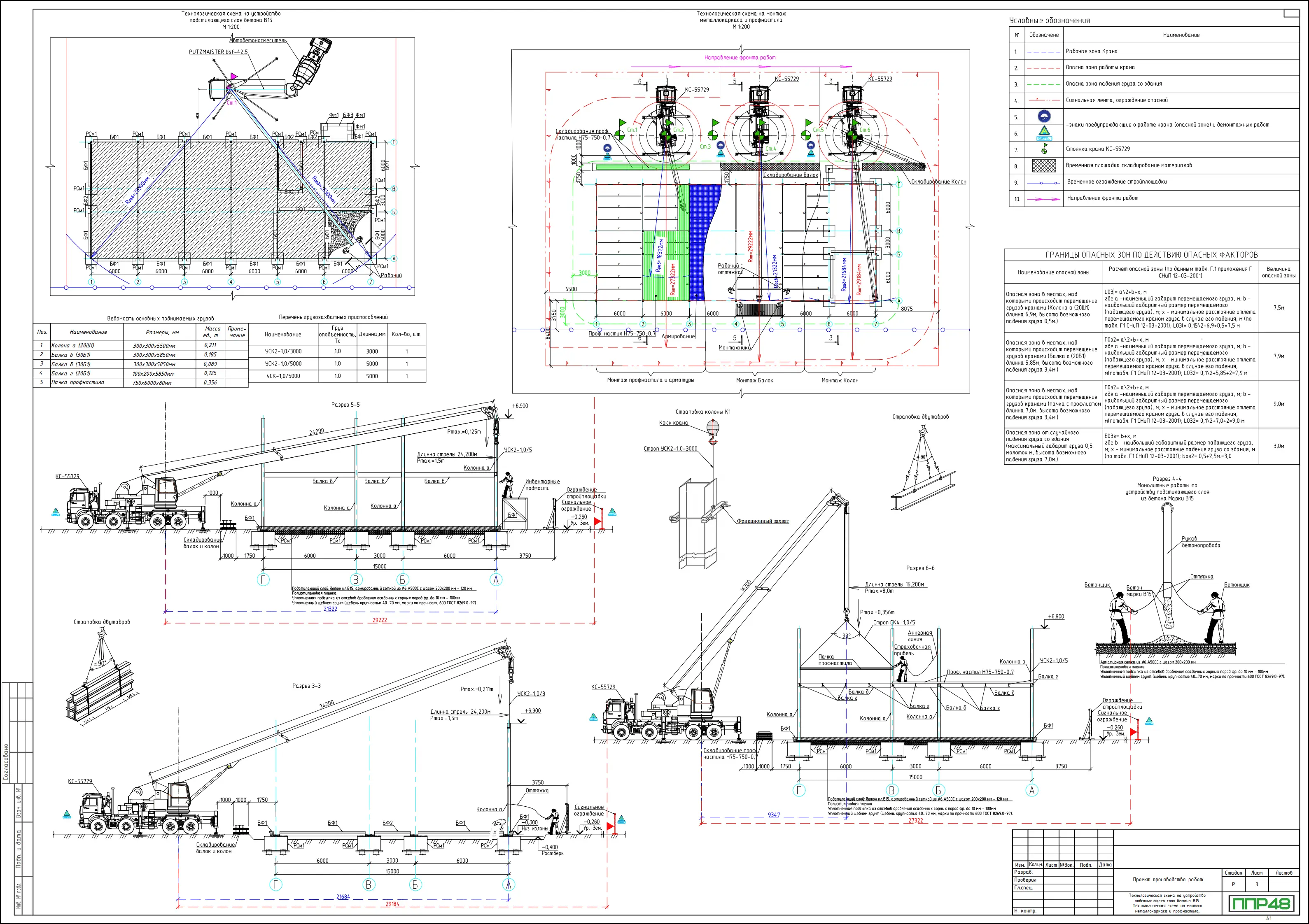
Наши проекты

Особенности разработки проекта производства работ (ППР) на строительство и ремонт зданий и сооружений

При строительстве зданий и сооружений ППР (проект производства работ) является одним из ключевых документов, определяющих порядок выполнения работ на объекте. В ППР должны быть четко определены этапы работ, используемые материалы и оборудование, а также меры по обеспечению безопасности на объекте. Разработка ППР является ответственным этапом и включает в себя учет множества нормативных документов и требований.

При разработке ППР необходимо учитывать нормативные документы, определяющие правила и требования к строительству, такие как ГОСТы, СНиПы, технические регламенты и др. При этом, в ППР должны быть учтены специфические особенности конкретного объекта и условия его эксплуатации. Также необходимо обеспечить согласованность ППР с другими проектными решениями и документами, связанными с строительством объекта.

Важно отметить, что правильно разработанный ППР может значительно снизить риски возникновения аварийных ситуаций и повысить безопасность на объекте. При этом, при разработке ППР необходимо уделить должное внимание не только соблюдению нормативных требований, но и оптимизации производственных процессов и использованию ресурсов.

Проект производства работ (ППР) и проект организации строительства (ПОС) являются основой планирования и реализации любых строительных задач — от возведения новых объектов до капитального ремонта и реконструкции помещений. В основе успешной реализации лежит подготовительный период, в ходе которого формируются содержание проекта, проектной документации и календарный план, определяются виды работ и последовательность их выполнения.

Разработка проекта представляет собой комплекс мероприятий по согласованию и детализации технологических процессов. В рамках ППРк и ППР включаются разделы по демонтажным работам, сносу и подготовке строительной площадки, а также по монтажу металлоконструкций и электромонтажным работам. Особое внимание уделяется безопасному труду: прописываются требования по охране труда, расчеты вредностей и мероприятия по противодействию авариям на участках с высотой работ и на ограниченных территориях стройплощадки.

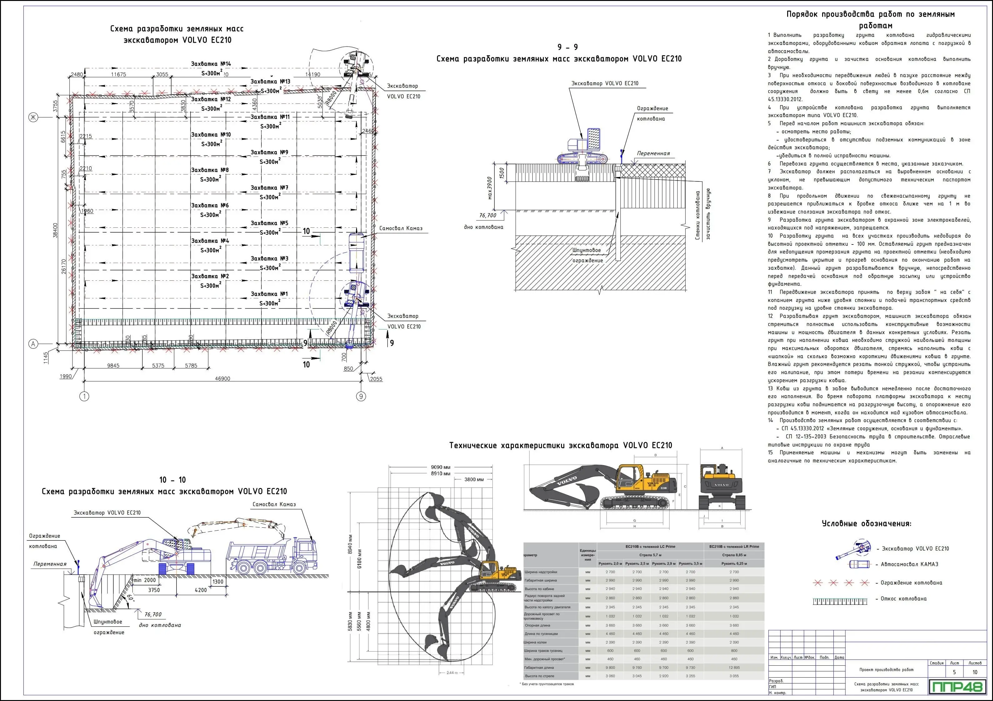
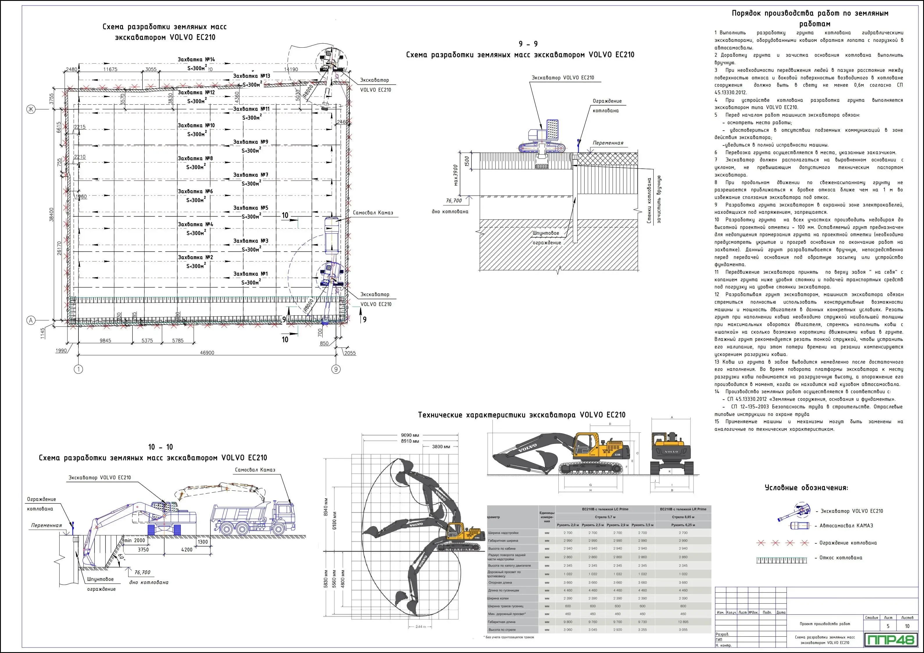
Исходная проектная документация для строительных и ремонтных работ должна содержать детализированные схемы инженерных сетей, водоснабжения, канализации, газопроводов и электроснабжения. В ППР по земляным работам описываются котлованы, земляные работы и методы прокладки коммуникаций. Монтаж металлоконструкций, кровли и кладку стен требуют четко заданной последовательности, выбору материалов и оборудования, а также расчета стоимости работ.

Этапы подготовки и проведения работ на стройплощадке включают подготовительный период, разработку плана работ и полный набор исполнительной документации. В составе ППР на подготовительный период учитываются новости отрасли, требования к защите окружающей среды и охране труда, а также спецификаций по монолитным и монолитно-монтажным работам. Для безопасного проведения работ на высоте и внутри помещений предусмотрены регламенты по применению слаботочных систем, а также по размещению оборудования и материалов на участке.

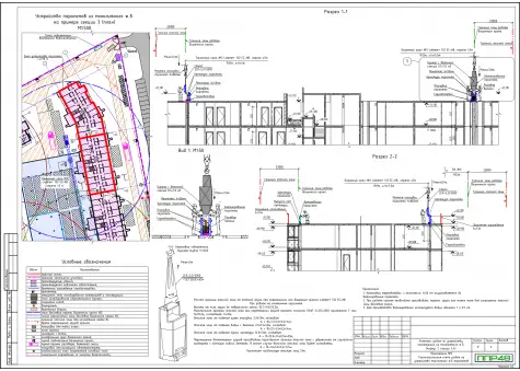
Особое внимание уделяется проектированию и оформлению документации, чтобы обеспечить прозрачность и прослеживаемость всех этапов. В составе документации прописываются схемы по трассам инженерных сетей, по водоснабжению, канализации и отоплению, а также по прокладке кабельных трасс и кабель-каналов. В рамках безусловных требований к качеству и срокам отражаются календарный план, графики поставок материалов, а также требования к курируемым специалистам и экспертов, которые выполняют контрольные функции на каждом этапе.

Ключевые задачи включают: определение стоимости работ на разных участках, учет зон и мест размещения оборудования, подбор подходящих технологий и механизмов для монтажа, а также учет рисков и нарушений в ходе реализации проекта. Подрядчик обязуется соблюдать требования по охране труда, санитарии и технике безопасности, а заказчик — обеспечивать необходимый доступ к территории и согласование работ. В документах по ППРк и ППР указаны требования к оформлению исполнительной документации, которая фиксирует фактические данные по выполненным работам, соответствие проектов действующим нормам и стандартам, а также отражает изменения, произошедшие на строительной площадке.

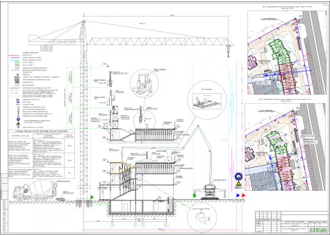
Примеры типовых разделов включают: безопасного труда, монтаж электрических и электромонтажных работ, сварочные работы, монтаж металлоконструкций, кровельные работы, слаботочных систем и прокладку инженерных сетей. В разделе по сносу и демонтажу приводятся порядок проведения работ, требования к утилизации и переработке материалов, а также способы минимизации воздействия на соседние зоны. При планировании проводятся расчеты по длинам и объемам, определяются этажность и уровни площадок, а также маршруты движения крана и размещение лесов.

Итоговый результат — единая карта действий: содержание подготовки, последовательность проведения строительных и ремонтных работ, оформление документации и контроль качества на каждом этапе. Важным является соблюдение обязательных требований к благоустройству территории, защите окружающей среды и охране труда, чтобы обеспечить безопасное и эффективное выполнение ППР работ.

Отзывы наших клиентов

ПОЛУЧИТЕ
КОММЕРЧЕСКОЕ
ПРЕДЛОЖЕНИЕ

ГАРАНТИРУЕМ
100% СОГЛАСОВАНИЕ

СРОК ИЗГОТОВЛЕНИЯ
ОТ 2-х ДНЕЙ

ПРЕДЛАГАЕМ
ИНДИВИДУАЛЬНЫЙ ПОДХОД

  • Вам нужны качественные услуги, для получения согласования со 100% гарантией?
  • Требуется выполнить пояснительные записки и чертежи не только для проверок, но и для использования на объекте?
  • Необходимо сориентироваться по стоимости разработки строительной документации?

Ответьте на несколько вопросов по вашему проекту и получите коммерческое предложение, оптимизированное под ваш случай!

Также наша компания занимается созданием технологических карт (ТК) на погрузо-разгрузочные работы