Срочная разработка. Лицензия СРО. Бесплатное устранение замечаний. Работаем в ЭДО.
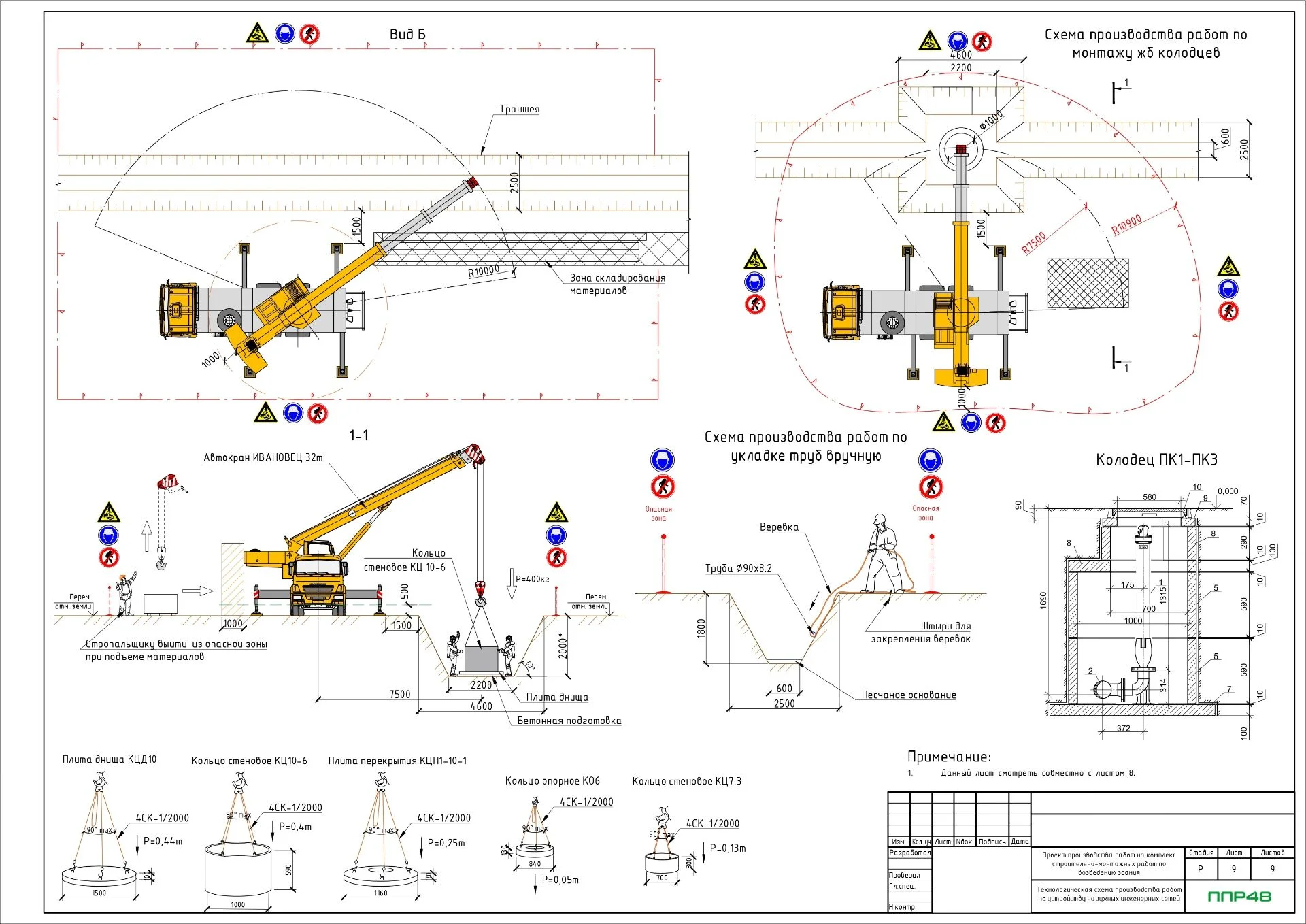
Разработка ППР на устройство колодцев
От 25 тысяч, от 2 дней. 100% гарантия принятия проекта надзорными органами.
В КАКИХ СЛУЧАЯХ МОЖЕТ ПОТРЕБОВАТЬСЯ ППР НА МОНТАЖ КОЛОДЦЕВ?
В большинстве случаев данный тип проектов разрабатывается в как один из подвидов проектов выпускаемых в комплексе проектов производства работ для строительства или реконструкции автодорог и внутридворовой благоустроенной территории. Наша компания занимается оказанием комплекса услуг по разработке ППР на работы связанные с монтажом и демонтажем колодцев в том числе смотровых. ППР на выполнение работ по монтажу колодцев входит в комплекс проектов по благоустройству территории и устройству автодорог. Документ разрабатывается с учётом действующих нормативов. Состав и содержание проектов производства работ регламентируются СП 48.13330.2019 «Организация строительства».
Какие исходные данные нам потребуются для того чтобы мы разработали ППР на монтаж колодцев
Для разработки проекта производства работ нам необходимы следующие документы:
-
Рабочая документация объекта (раздел ГП, стадия Р)
Включает рабочий проект с указанием дорожных покрытий и мест расположения колодцев, их узлы и спецификацию. -
Проект организации строительства (ПОС)
Определяет список строительной техники, общий принцип и последовательность выполнения работ. -
Ведомость объемов работ или смета
Позволяет определить список работ, которые необходимо отразить в проекте, а также их объемы. -
Перечень строительной техники
Если ваша компания уже определилась со списком техники и оборудования, мы учтем в проекте все нюансы связанные с ее работой. -
План строительной площадки
Показывает расположение зон и объектов, что требуется для составления схем движения и расстановки техники.
Эти документы нужны для создания точного и прикладного ППР, соответствующего особенностям объекта и требованиям нормативов.
Особенности разработки ППР на монтаж или демонтаж смотровых колодцев
Особенности разработки ППР на монтаж или демонтаж колодцев заключаются в детальном анализе исходной рабочей документации еще до начала проектирования. Наши специалисты внимательно изучают, к каким видам инженерных сетей относятся колодцы (водоснабжение, канализация, теплосеть и т.д.), из каких материалов они изготовлены (ж/б, пластик, кирпич), какие подготовительные этапы и работы планируются (разработка котлована, откачка воды, устройство основания и др.).
Кроме того, рассматривается необходимость гидроизоляции колец, наличие сварочных работ и других специфических операций. Эти факторы напрямую влияют на содержание и структуру будущего документа — определяют разделы по технологии производства работ, охране труда, описанию используемой техники и материалов.
Важно выявить и согласовать такие особенности на самой ранней стадии — в процессе изучения рабочей документации. Это позволяет учесть все детали, минимизировать риски и сделать проект максимально точным и соответствующим реальным условиям на объекте.
Стоимость разработки ППР на монтаж колодцев в компании ППР 48
В нашей компании стоимость разработки ППР определяется индивидуально для каждого проекта. При этом учитываются все особенности объекта и пожелания клиента. В цену подготовки документа могут входить затраты на дополнительные расчеты или составление документации, не входящей в обязательный состав документа.
Пример расчёта стоимости:
- начальная стоимость разработки проекта производства работ на устройство смотровых колодцев 17.000 рублей;
- учет коэффициента сложности проекта (например, 1,5 для сложных условий монтажа);
- учет сроков разработки ППР (сжатые сроки увеличивают стоимость);
- учет стоимости дополнительных расчётов (например, расчёт нагрузок на конструкции);
- учет стоимости дополнительных услуг (например, выезд специалиста нашей организации на объект).
Для получения точной информации о стоимости и сроках разработки проекта на монтаж смотровых колодцев рекомендуем заполнить форму, ответив на несколько вопросов касательно Вашего проекта, или обратиться к специалистам компании ППР 48 любым удобным для Вас способом.




































