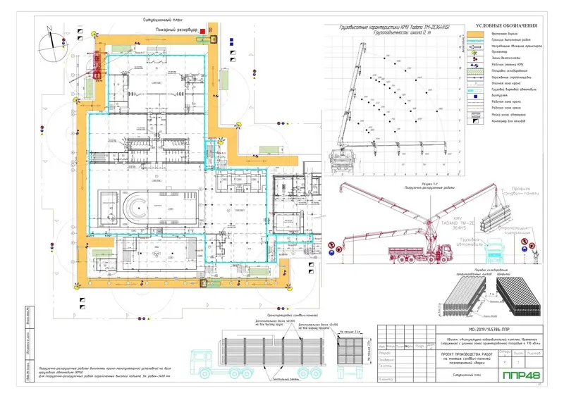
Проект производства работ на монтаж сэндвич-панелей
Сэндвич-панели (далее - СэП) являются, лёгким, недорогим, быстровозводимым и практичным конструктивным решением современных зданий. СэП широко применяется при строительстве промышленных и гражданских объектов. Тем не менее, быстровозводимость и низкая стоимость монтажа достигается правильной проектно-изыскательской работой, как на этапе проектирования конструкции, так и на этапе проектирования монтажных работ.
Проектный комплект стадии РД должен включать разделы, описывающие фахверковые конструкции, как правило, таковыми выступают металлические профили, реже сэндвич-панели крепятся непосредственно к стене. Описанию подлежит правильные раскрой и раскладка элементов по месту будущей установки, узлы сопряжения панелей с несущими конструкциями здания, организация стандартных узлов (парапетов, свесов, проёмов, выводов, проходок и т.п.). Всё вышеописанное подготавливается для конкретных видов СэП от конкретного производителя.
Особенности разработки ППР на монтаж сэндвич-панелей
Проекты производства работ (ППР) на монтаж сэндвич-панелей разрабатывается с учётом всех особенностей объекта строительства. В ППР описываются меры безопасности строительного производства, определяются оптимальные, последовательность и направление выполнения работ, проводиться разделение общего фронта строительства на захватки, подбираются средства подмащивания, малая механизация, инструменты и приспособления, подбирается необходимый состав техники и для него рассчитываются рабочие стоянки, опасные зоны и зоны производства работ. Кроме того, уделяется внимание особенностям хранения СэП на открытом воздухе, исключающим замачивание слоя утеплителя.
Немаловажным аспектом рассмотрения подобных ППР являются погодные условия, при которых возможно ведение работ, так как СэП являются материалами, обладающими большой парусностью, что, даже при небольших порывах ветра, будет осложнять монтаж и даже будет опасным для рабочих.
В подавляющем большинстве случаев выполнение работ по монтажу сэндвич-панелей связано с ведением работ на высоте, что в соответствии с приказом Минтруда России от 16.11.2020 № 782н "Об утверждении Правил по охране труда при работе на высоте" в обязательном порядке требует разработки плана производства работа на высоте (ППРВ).
Факторы, влияющие на стоимость разработки ППР, у кого и почему стоит заказывать
Возвращаясь к предыдущим разделам необходимо отметить, что в настоящее время участились случаи выдачи технических заданий (ТЗ) на разработку ППР без рабочей документации, которая подменяется дефектной ведомостью и сметой.
Важно понимать что, отсутствие названных разделов приводит к значительному удорожанию ППР, так как выполнение работ без них будет невозможным и потребует описания названных разделов в составе ППР. В остальном, факторы оказывающие влияние на стоимость и сроки разработки ППР стандартны, к таковым относятся: сложность объекта строительства, количество используемых типов техники, наличие нестандартных факторов усложняющих монтаж и т.п.
В любом случае, разработкой ППР на монтаж сэндвич-панелей должны заниматься профессионалы, способные грамотно подготовить строительное производство, коими являются специалисты ППР48.









































