Рабочая документация на монтаж кондиционеров от ППР 48
Специалисты компании ППР 48 рабочую документацию рабочей документации (архитектурно-строительное решение) на монтаж климатического оборудования, предназначенной для комфортной и функциональной интеграции систем кондиционирования воздуха в объекты различного назначения.
Работа выполнена в полном соответствии с действующими нормами и правилами проектирования, что гарантирует правильный подбор оборудования, надежное крепление конструкций и оптимальное размещение воздухораспределительных устройств.
В состав документации входят:
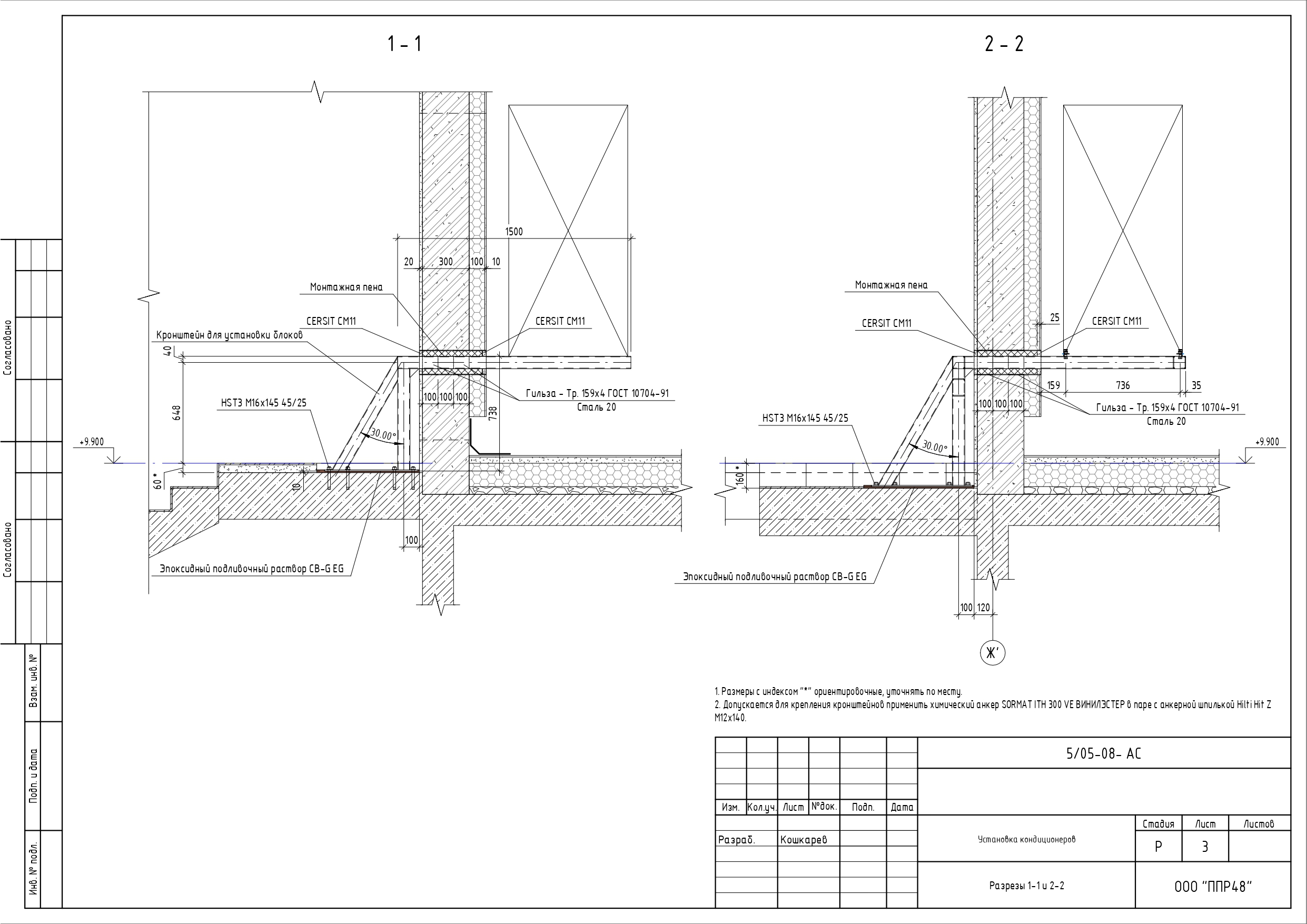
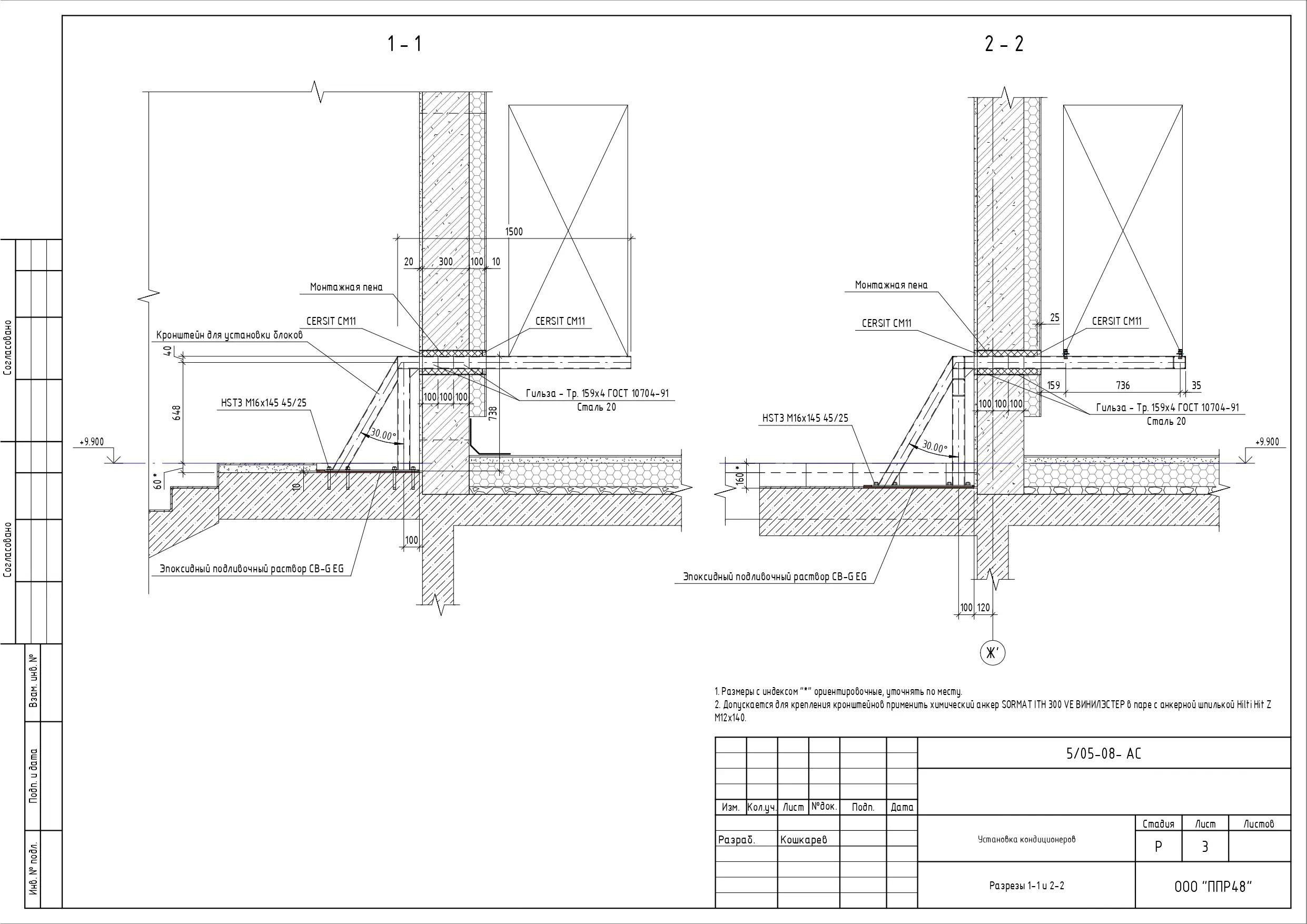
- плановая схема размещения кондиционера с указанием мест подключения коммуникаций;
- конструктивные решения крепления навесных частей оборудования и соединительных элементов;
- спецификация применяемого оборудования и расходных материалов;
- указания по подготовке помещения и технике безопасности при проведении монтажных работ.
Документы разработаны опытными инженерами компании ППР 48, имеющими значительный опыт работы в сфере архитектурно-строительного проектирования и сопровождения строительных объектов.
Примененный подход позволяет эффективно интегрировать систему кондиционирования, обеспечить комфортные условия пребывания людей внутри помещений и продлить срок службы установленного оборудования.
Ознакомиться подробнее с результатами выполненной работы и условиями сотрудничества можно на официальном сайте компании ППР 48.




























