Компания ППР48 разработала ППР на усиление участков перекрытия
Пример ППР на усиление участков перекрытия технического этажа и покрытия, в местах опирания наружных стен, и дополнительному креплению наружных стен в уровне технического этажа и кровли.
ППР предназначается для сотрудников строительной организации, осуществляющей монтажные работы: ИТР, производителей работ, бригадиров, рабочих.
В данный ППР включены следующие виды работ:
- работы по ограждению опасных зон производства работ;
- подготовка рабочих мест;
- демонтажные и монтажные работы;
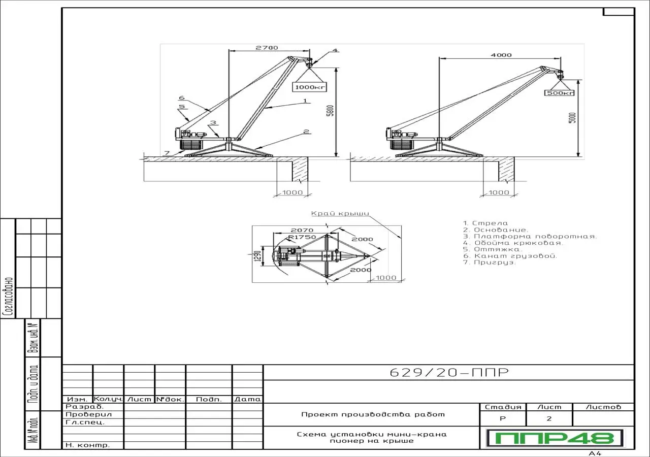
- работы с помощью грузоподъемной техники;
- решения по выносу и вывозу мусора.
ППР соответствует требованиям законодательства Российской Федерации и следующих нормативных документов:
- СП 48.13330.2019 «Организация строительства»;
- СП 48.13330.2011 Организация строительства;
- ГОСТ 25573-82 (РД-10-33-93) РД 24-СЗК-01-01 Стропы грузовые канатные для строительства. Технические условия. (Стропы грузовые общего назначения). Стропы грузовые текстильные общего назначения на текстильной основе. Требования к устройству и безопасной эксплуатации;
- ГОСТ 23407-78 Ограждения инвентарные строительных площадок и участков производства строительно-монтажных работ. Технические условия;
- ГОСТ 12.3 – 009 – 76* Работы погрузочно-разгрузочные. Общие требования безопасности;
- РД -11-06-2007 Методические рекомендации о порядке разработки проектов производства работ грузоподъемными машинами и технологических карт погрузочно–разгрузочных работ;
- Правила по охране труда в строительстве от 1 июня 2015 года No 336н;
- СП 12-136-2002 Безопасность труда в строительстве. Решения по охране труда и промышленной безопасности в ПОС и ППРк;
- Федеральные нормы и правила в области промышленной безопасности. Утв. Приказом No533 ФС ЭТАН 12.11.2013 Правила безопасности опасных производственных объектов, на которых используются подъемные сооружения;
- Правила по охране труда при работе на высоте от 28 марта 2014 г. N 155н;
- СП 52.13330.2011 Свод правил. Естественное и искусственное освещение;
- Правила по охране труда при погрузочно-разгрузочных работах и размещении грузов от 17.09.2014 N 642н.
- СП 15.13330.2012 «Каменные и армокаменные конструкции». Актуализированная редакция;
- СП 16.13330.2017 «Стальные конструкции». Актуализированная редакция.
- СП 20.13330.2016 «Нагрузки и воздействия». Актуализированная редакция.;
- СП 45.13330.2017 Земляные сооружения, основания и фундаменты. Актуализированная редакция;
- СП 70.13330.2012 "Несущие и ограждающие конструкции". Актуализированная редакция.
Как вы видите из данного примера "ППР на усиление участков перекрытия", специалисты ППР48 профессионально справились с поставленной задачей. Если вам необходима разработка проекта на работы связанные с усилением конструкций, оставьте заявку и наш специалист свяжется с вами для уточнения деталей проекта.














